Новобудова » Вілла » Monforte del Cid &raqu

Вілла. Новобудова Monforte del Cid. Alicante
Ref: NC-69482

637.000€

Вілла. Новобудова Monforte del Cid. Alicante
Ref: NC-69482

Огляд

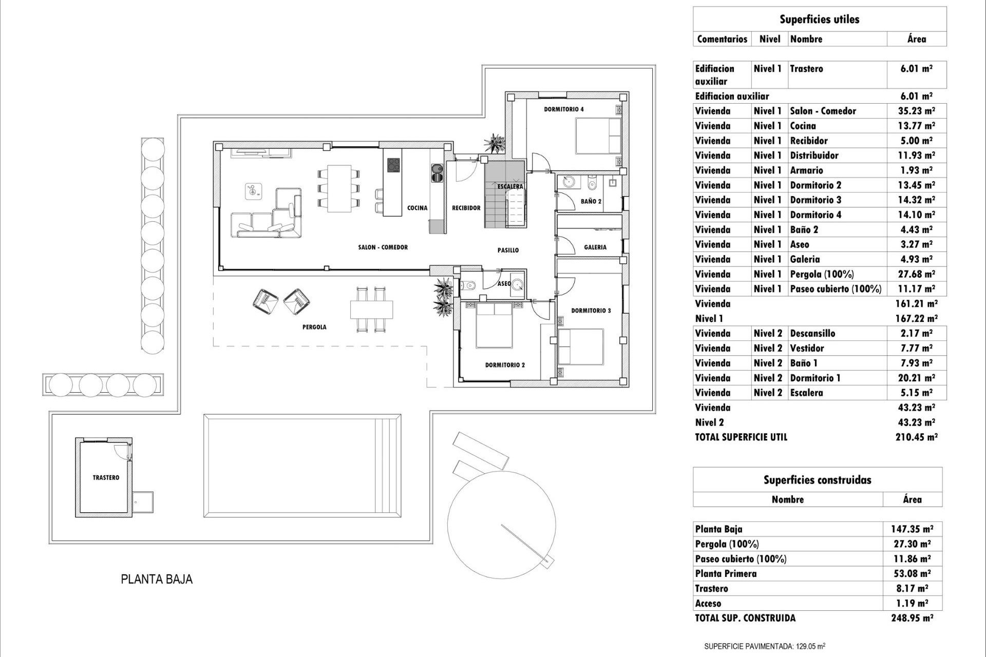
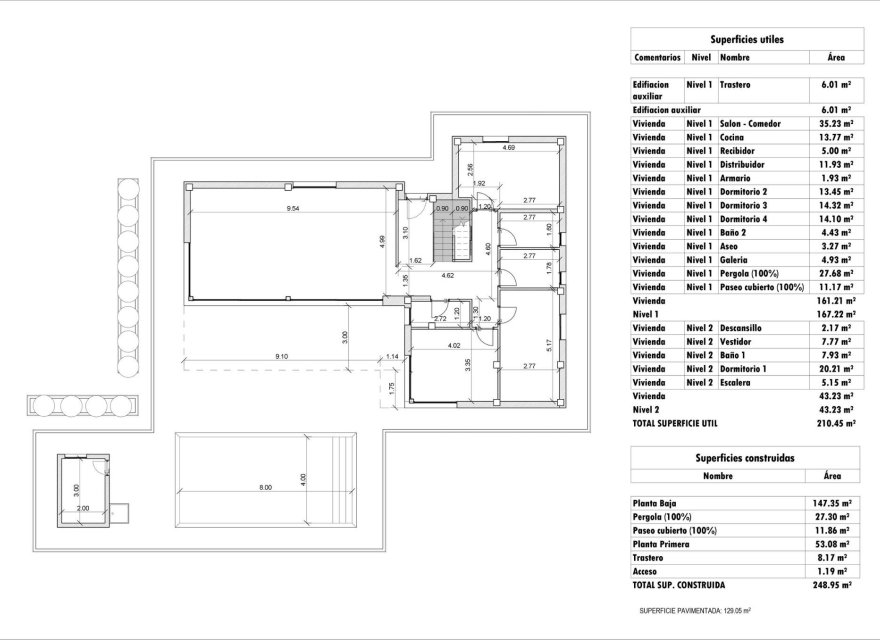
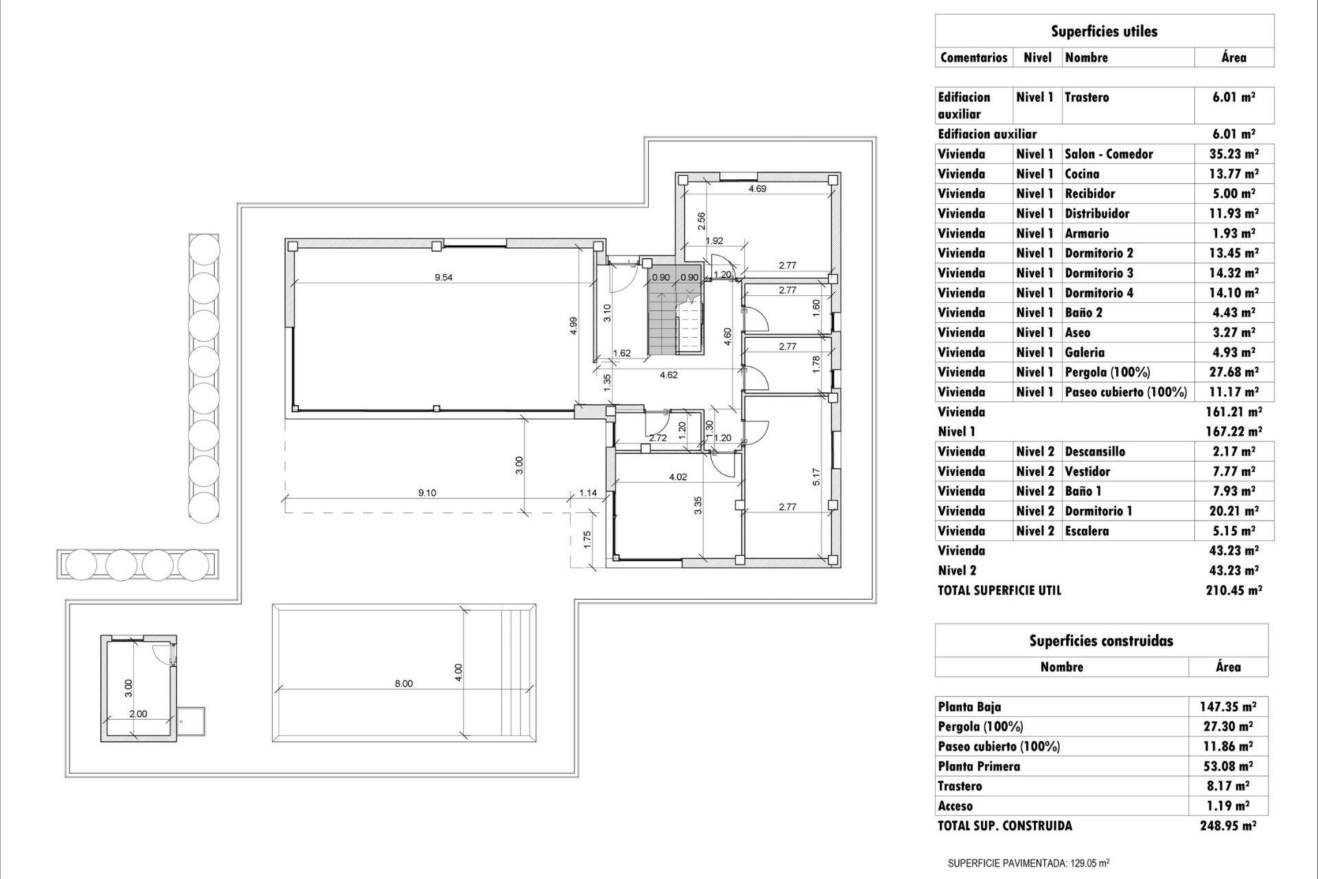
  • МЕТРИ 248m2
  • Ділянка 13.172m2
  • Спальні 4
  • Басейн Приватний
Спальні: 4
Ванні кімнати: 3
Збудовано: 248m2
Корисні: 210m2
Ділянка: 13.172m2
Басейн: Приватний
Відстань до пляжу: 25000 м
Обладнана кухня
Приватний басейн
Сад
Закритий комплекс
Кількість паркувальних місць: 1
Поруч зі школами
Кондиціонер: Попередньо встановлений
Двомісні спальні: 4
Тераса: 38 Msq.
Корисна будівельна площа: 210 кв. м.
Місцезнаходження: Гора
Пляж: 25000 метрів
Парковка - простір
Комора

Опис

Новозбудовані вілли, розташовані в муніципалітеті Аспе.

Локація

Зробити запит btn-enquiry

Оператор даних: Grupo Terrasun, SL, Мета обробки: Управління та контроль послуг, що надаються через сайт нерухомості, надсилання інформації через розсилки та інші канали, Правова підстава: За згодою, Одержувачі: Дані не будуть передані, за винятком бухгалтерських цілей, Права суб’єктів даних: Право на доступ, виправлення та видалення даних, запит на перенесення, заперечення проти обробки та її обмеження, Джерело даних: Сам зацікавлений, Додаткова інформація: Детальну інформацію про захист даних можна знайти тут.

WhatsApp Чат із нами зараз!