Nowa konstrukcja » Willa » Monforte del Cid

Willa. Nowa konstrukcja Monforte del Cid. Alicante
Ref: NC-69482

637.000€

Willa. Nowa konstrukcja Monforte del Cid. Alicante
Ref: NC-69482

Przegląd

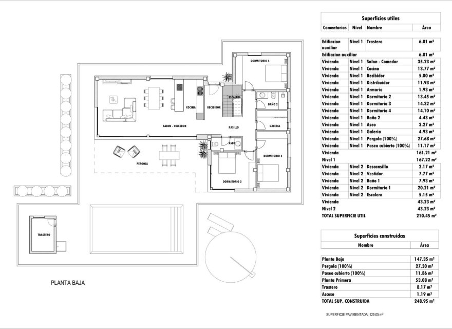
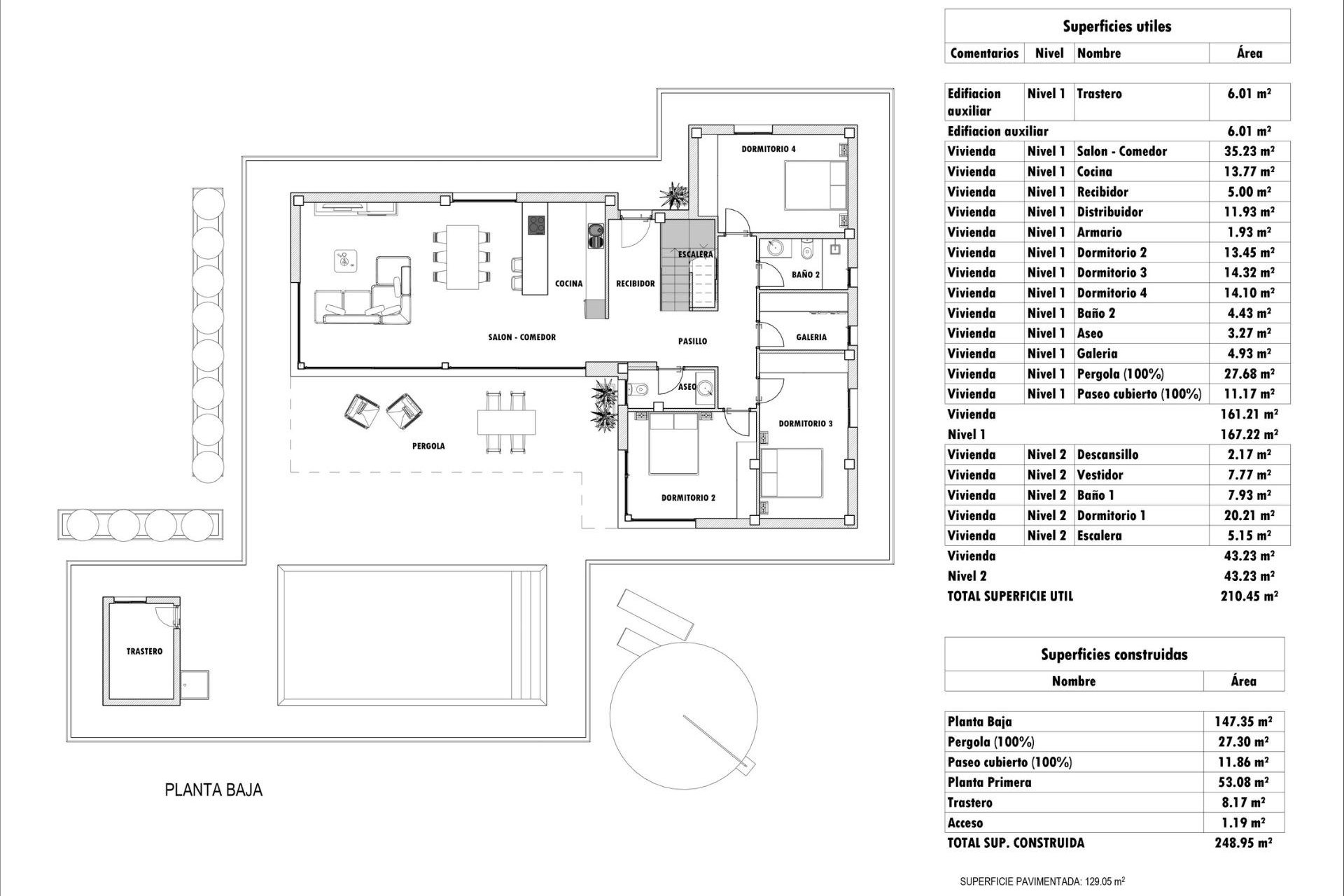
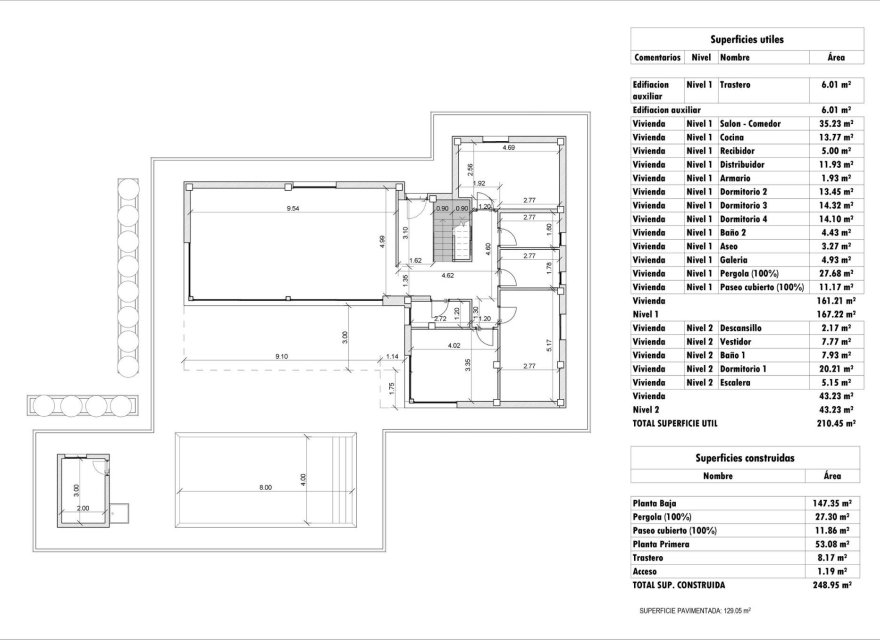
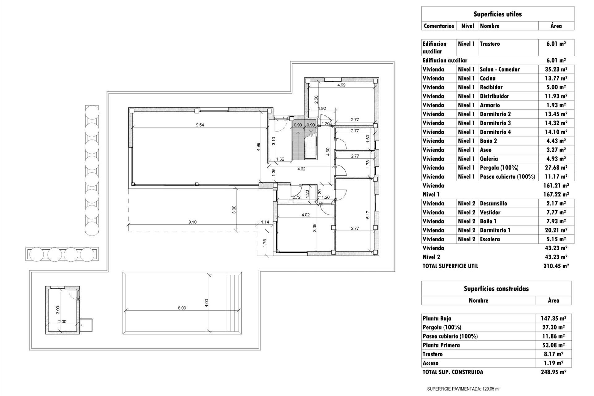
  • METRY 248m2
  • Działka 13.172m2
  • Sypialnie 4
  • Basen Prywatny
Sypialnie: 4
Łazienki: 3
Powierzchnia: 248m2
Przydatne: 210m2
Działka: 13.172m2
Basen: Prywatny
Odległość od plaży: 25000 Mts.
Wyposażona kuchnia
Klimatyzacja: Zainstalowana fabrycznie
Podwójne Sypialnie: 4
Taras: 38 Msq.
Powierzchnia użytkowa: 210 m kw.
Lokalizacja: Góra
Plaża: 25000 metrów
Parking - miejsce
Przechowywanie
Prywatny basen
Ogród
Kompleks zamknięty
Liczba miejsc parkingowych: 1
W pobliżu szkół

Opis

Nowe wille położone w gminie Aspe.

Lokalizacja

btn-enquiry

Administrator danych: Grupo Terrasun, SL, Cel przetwarzania: Zarządzanie i kontrola usług oferowanych za pośrednictwem strony internetowej nieruchomości, wysyłanie informacji za pomocą newsletterów i innych środków, Podstawa prawna: Na podstawie zgody, Odbiorcy: Dane nie będą udostępniane, z wyjątkiem celów księgowych, Prawa osób, których dane dotyczą: Prawo dostępu, sprostowania i usunięcia danych, żądanie przenoszenia danych, sprzeciw wobec przetwarzania oraz żądanie jego ograniczenia, Źródło danych: Sam zainteresowany, Dodatkowe informacje: Szczegółowe informacje o ochronie danych można znaleźć tutaj.

WhatsApp Czat z nami teraz!