Obra nueva » Villa » Monforte del Cid &raqu

Villa. Obra nueva Monforte del Cid. Alicante
Ref: NC-69482

637.000€

Villa. Obra nueva Monforte del Cid. Alicante
Ref: NC-69482

Resumen

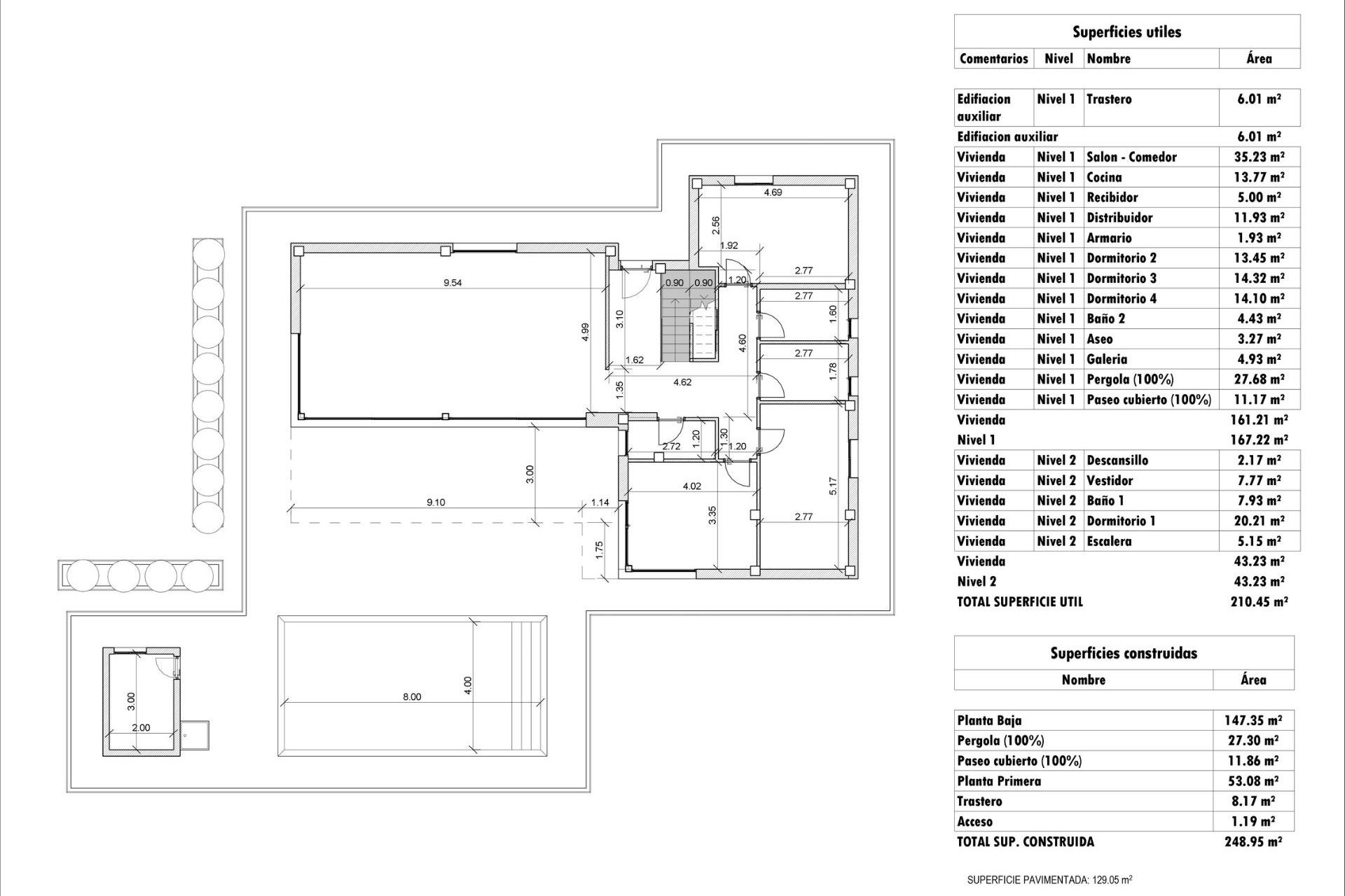
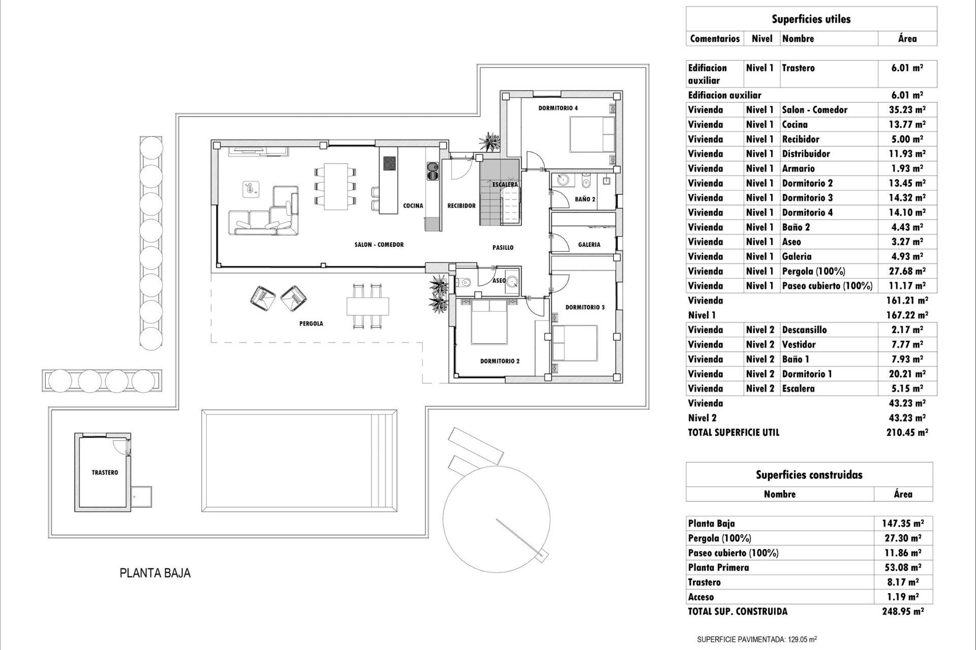
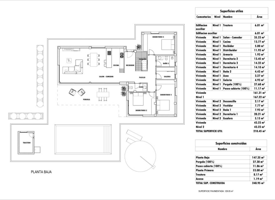
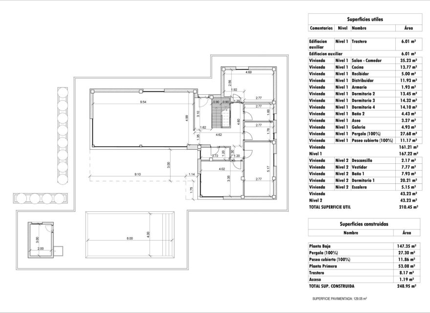
  • METROS 248m2
  • Parcela 13.172m2
  • Habitaciones 4
  • Piscina Privada
Habitaciones: 4
Baños: 3
Construidos: 248m2
Útiles: 210m2
Parcela: 13.172m2
Piscina: Privada
Distancia a la playa: 25000 Mts.
Cocina amueblada
Piscina privada
Jardín
Complejo cerrado
Número de plazas de aparcamiento: 1
Cerca de colegios
Aire acondicionado: Preinstalado
Dormitorios dobles: 4
Terraza: 38 Msq.
Espacio edificable útil: 210 Msq.
Ubicación: Montaña
Playa: 25000 Metros
Aparcamiento - Espacio
Storage / Trastero

Descripción

Villas de obra nueva situadas en término de Aspe.

Localización

Realizar una consulta btn-enquiry

Responsable del tratamiento: Grupo Terrasun, SL, Finalidad del tratamiento: Gestión y control de los servicios ofrecidos a través de la página Web de Servicios inmobiliarios, Envío de información a traves de newsletter y otros, Legitimación: Por consentimiento, Destinatarios: No se cederan los datos, salvo para elaborar contabilidad, Derechos de las personas interesadas: Acceder, rectificar y suprimir los datos, solicitar la portabilidad de los mismos, oponerse altratamiento y solicitar la limitación de éste, Procedencia de los datos: El Propio interesado, Información Adicional: Puede consultarse la información adicional y detallada sobre protección de datos Aquí.

WhatsApp ¡Chatea con nosotros ahora!