Новострой » Бунгало » Torrevieja » Lo

Бунгало. Новострой Torrevieja. Alicante
Ref: NC-51332

259.000€

Бунгало. Новострой Torrevieja. Alicante
Ref: NC-51332

Обзор

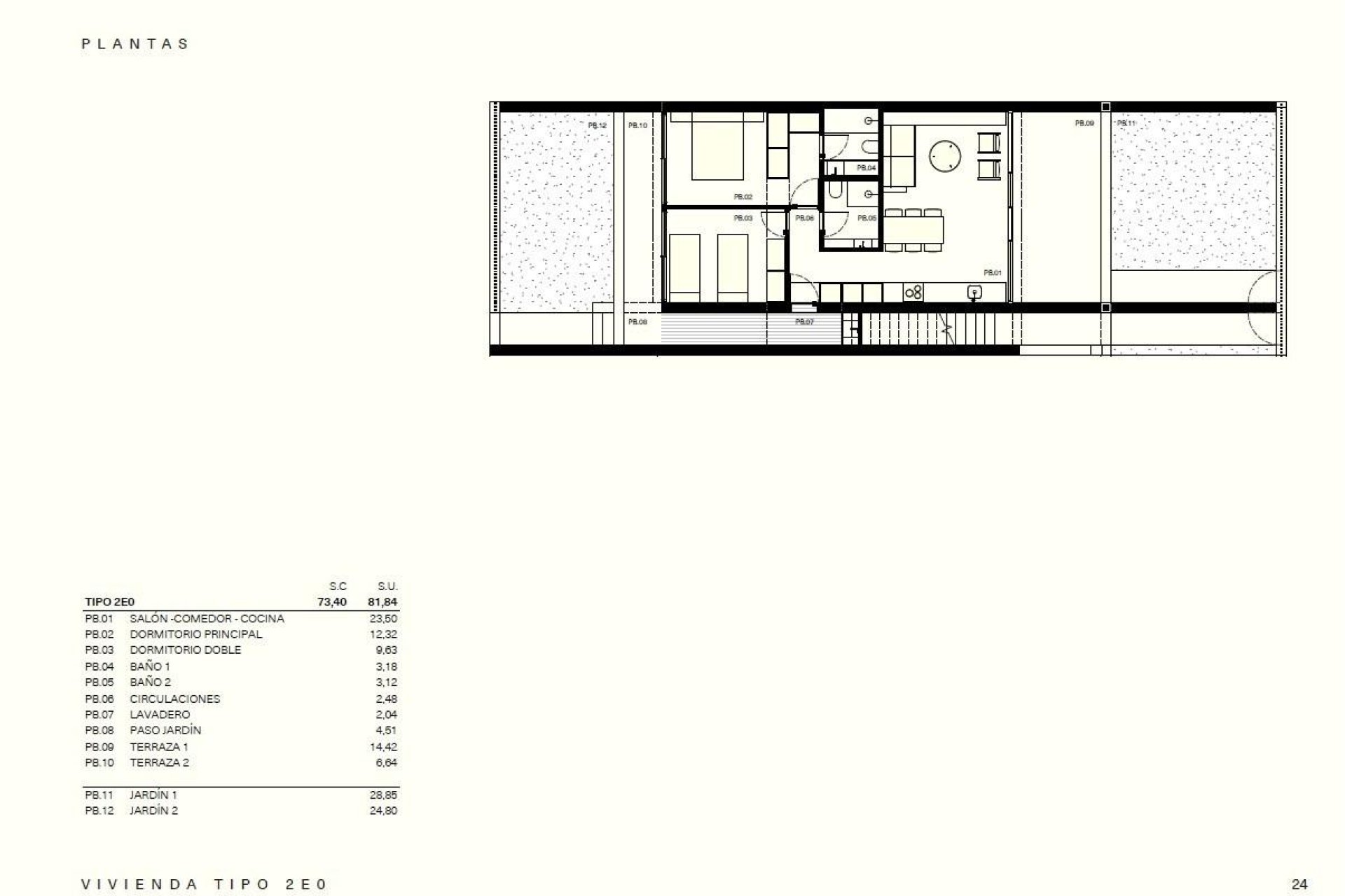
  • МЕТРЫ 81m2
  • Участок 53m2
  • Спальни 2
  • Бассейн Общий
Спальни: 2
Ванные комнаты: 2
Жилая площадь: 81m2
Полезная площадь: 73m2
Участок: 53m2
Бассейн: Общий
Расстояние до пляжа: 3500 Метров
Меблированный
Оборудованная кухня
Сад
Закрытый комплекс
Количество парковочных мест: 1
Около школ
Рядом с коммерческим центром
Кондиционер: Предварительно установленный
Спальни: 2
Общий бассейн
Расположение: Прибрежный, Урбанизация
Полезная площадь застройки: 73 кв.м.
Терраса: 20 кв. м.
Пляж: 3500 метров
Парковка - место
Кладовая

Описание

Новые жилые апартаменты в Лос-Бальконес, Торревьеха

Местоположение

Сделать запрос btn-enquiry

Контролер данных: Grupo Terrasun, SL, Цель обработки: Управление и контроль предоставляемых услуг через сайт недвижимости, рассылка информации через информационные бюллетени и другие средства, Правовое основание: На основании согласия, Получатели: Данные не будут передаваться, за исключением бухгалтерских целей, Права субъекта данных: Право на доступ, исправление и удаление данных, запрос на перенос данных, возражение против обработки и запрос на её ограничение, Источник данных: Сам заинтересованный, Дополнительная информация: Подробную информацию о защите данных можно найти здесь.

WhatsApp Чат с нами сейчас!