Нові житлові апартаменти в Лос Балконес, Торрев'єха
Сучасні будинки в престижному житловому районі
Відкрийте для себе цей привабливий новозбудований житловий комплекс, розташований у Лос Балконес, одному з найпопулярніших та найстаріших районів на околиці Торрев'єхи.
Розташований у тихому середовищі з чудовим доступом до всіх необхідних послуг, цей комплекс знаходиться лише за 4 км від піщаних пляжів Коста-Бланки.
Лос Балконес відомий своєю розслабленою атмосферою, широкими вулицями, зеленими зонами та близькістю до лікарень, супермаркетів, ресторанів та торгових центрів, що робить його ідеальним для цілорічного проживання або відпочинку.
Сучасні апартаменти з приватними відкритими просторами
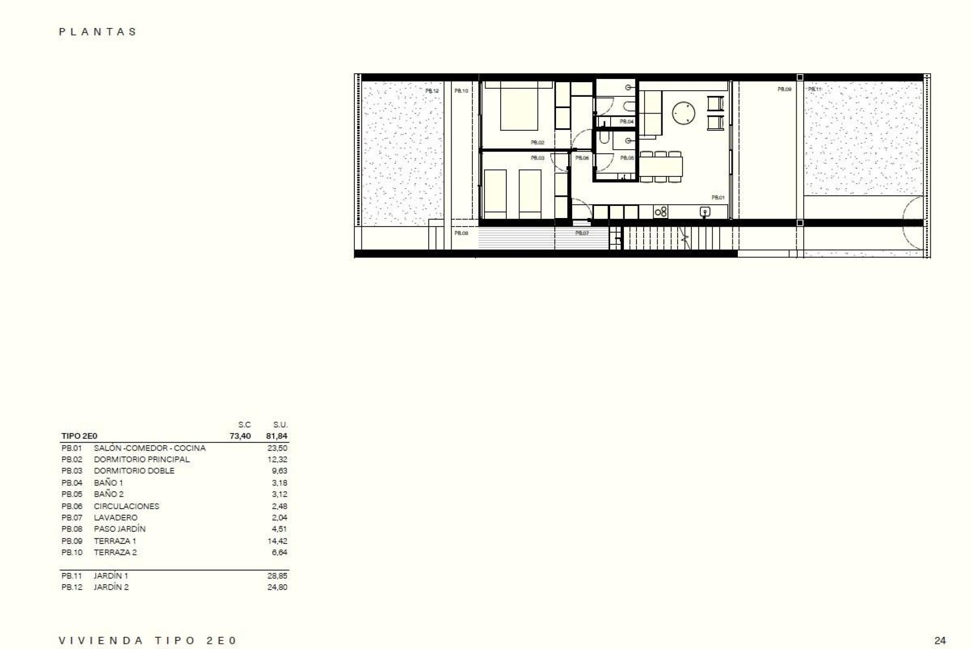
Комплекс складається з 52 сучасних апартаментів, побудованих на загальній площі 6700 м2.
Кожен об'єкт включає приватне паркомісце та комору в підземному поверсі.
Будинки пропонують 2 або 3 спальні та 2 ванні кімнати, одна з яких має власну ванну кімнату.
Покупці можуть вибирати між апартаментами на першому поверсі з приватним садом або будинками на верхньому поверсі з просторою терасою та приватним солярієм.
Ці планування розроблені для максимального використання природного освітлення та забезпечення комфортних житлових просторів у приміщенні та на відкритому повітрі, щоб насолоджуватися середземноморським кліматом цілий рік.
Спільні зони, призначені для відпочинку
Проект розподілений на чотири блоки, що оточують велику центральну спільну зону.
Це зелене серце забудови має басейн зі спеціальною дитячою зоною та гарно озеленені сади.
Ці спільні простори ідеально підходять для відпочинку, спілкування та сімейного відпочинку в безпечному та дружньому середовищі.
Якісні характеристики та енергоефективний дизайн
Кожна квартира побудована за сучасними стандартами та включає попередню установку канального кондиціонування повітря, аеротермальну систему гарячого водопостачання для підвищення енергоефективності, зовнішнє освітлення та подвійне скління зовнішньої столярної роботи.
Кухні повністю мебльовані, пропонуючи функціональний та стильний простір для щоденного життя.
Ці характеристики забезпечують високий рівень комфорту, низькі експлуатаційні витрати та знижене споживання енергії, що робить будинки одночасно практичними та екологічними.
Відмінне розташування поруч із пляжами та гольф-клубом
Los Balcones пропонує стратегічне розташування поблизу багатьох визначних місць.
Пляжі Торрев'єхи знаходяться приблизно за 4 км.
Кілька відомих полів для гольфу, таких як Villamartin Golf, Las Ramblas Golf та Campoamor Golf, знаходяться на відстані від 10 до 15 км.
Університетська лікарня Торрев'єхи знаходиться менш ніж за 2 км, що додає зручності та спокою.
Центр міста Торрев'єха знаходиться приблизно за 5 км, звідки можна дістатися автобусом до Лос-Балконес, де ви знайдете широкий вибір магазинів, ресторанів, культурних закладів та жваву пристань для яхт.
Міжнародний аеропорт Аліканте розташований приблизно за 42 км, що забезпечує легке міжнародне сполучення.
Порт Торрев'єхи знаходиться приблизно за 6 км.
Ідеально підходить для проживання або інвестицій
Завдяки сучасному дизайну, чудовим громадським зонам та чудовому розташуванню поруч із пляжами, гольф-клубом та послугами, цей новий житловий комплекс у Лос-Балконес, Торрев'єха, ідеально підходить як постійне місце проживання, будинок для відпочинку або інвестиційна можливість.
Зв'яжіться з нами сьогодні для отримання додаткової інформації або щоб домовитися про перегляд цих новозбудованих апартаментів у Лос-Балконес, Торрев'єха.