New Build » Apartment » Torrevieja »

Apartment. New Build Torrevieja. Alicante
Ref: NC-40187

255.000€

Apartment. New Build Torrevieja. Alicante
Ref: NC-40187

Overview

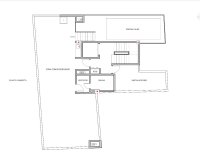
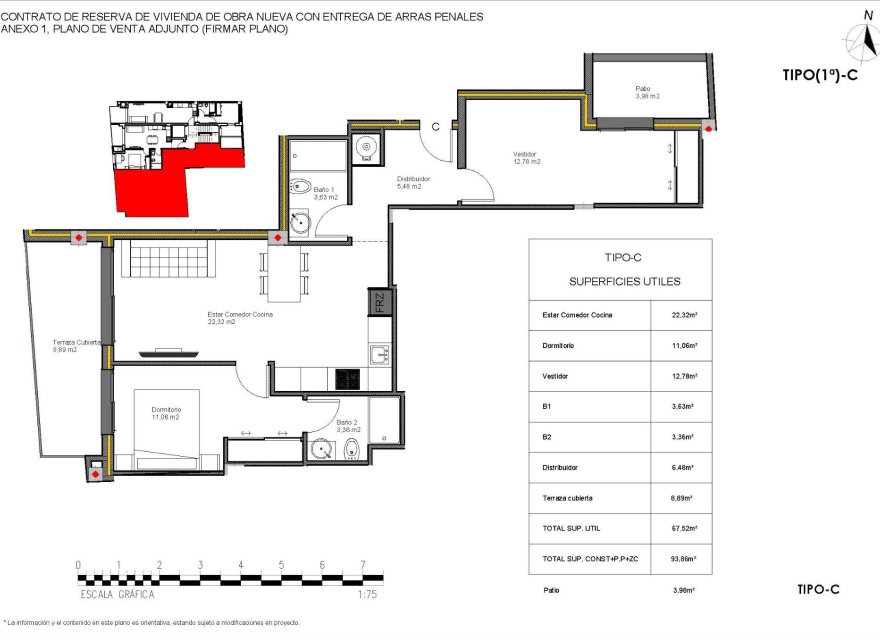
  • METERS 93m2
  • Bedrooms 2
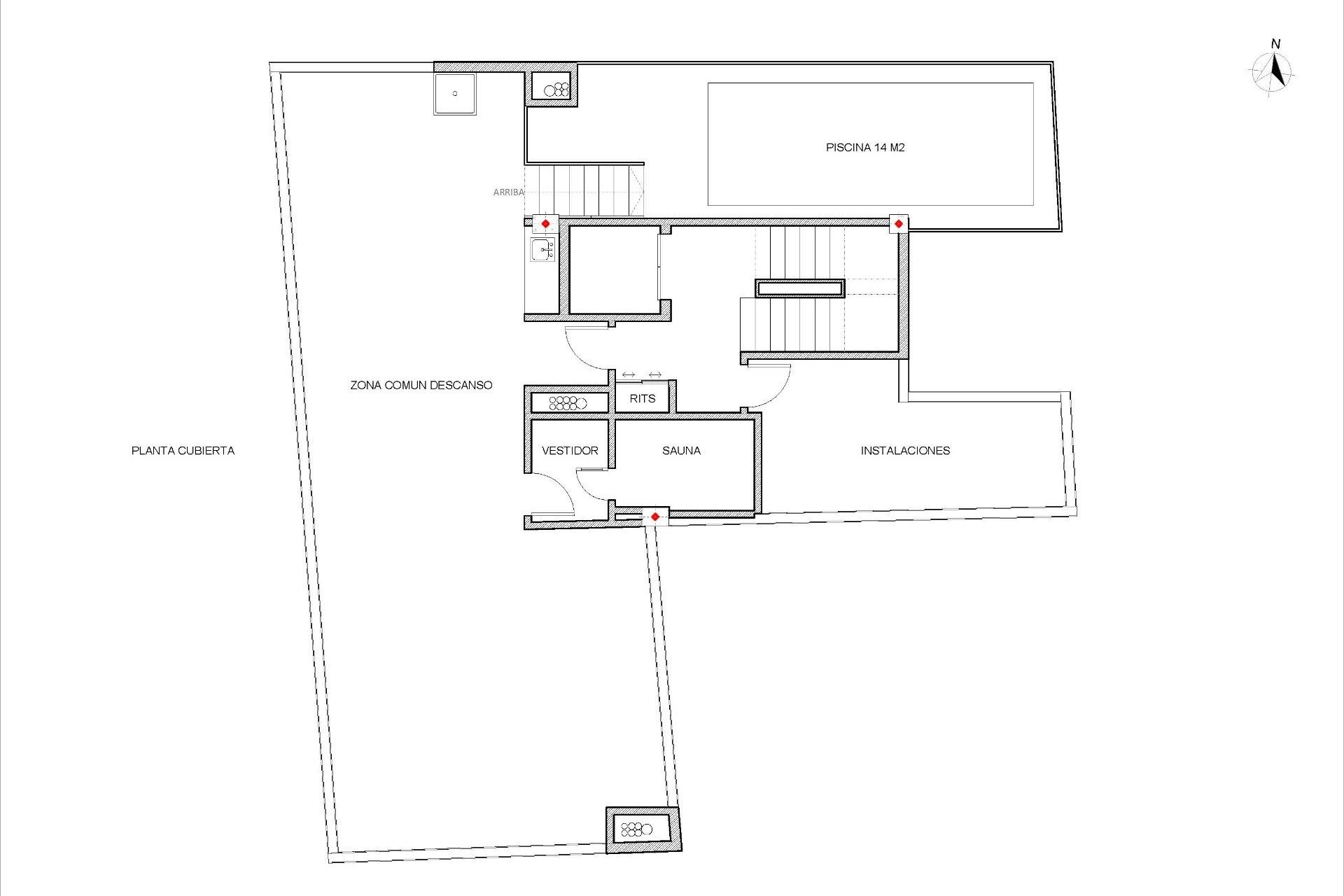
  • Pool Community
Bedrooms: 2
Bathrooms: 2
Built: 93m2
Usable: 67m2
Pool: Community
Distance to beach: 400 Mts.
Furnished kitchen
Near Schools
Near Commercial Center
Near Bus Route
Location: Coastal
Air Conditioning: Pre-Installed
Double Bedrooms: 2
Elevator/Lift
Communal Pool
Space
BBQ
Useable Build Space: 67 Msq.
Has Main Electric
Terrace: 13 Msq.
Beach: 400 Meters

Description

Newly built apartments in Torrevieja Just 600 metres from Playa del Cura beach

Location

Make an enquiry btn-enquiry

Data Controller: Grupo Terrasun, SL, Purpose of Processing: Management and control of services offered through the Real Estate Services website, sending information via newsletters and other means, Legal Basis: Consent, Recipients: Data will not be shared, except for accounting purposes, Rights of Data Subjects: The right to access, rectify, and delete data, request data portability, object to processing, and request its limitation,  Source of Data: The data subject, Additional Information: You can consult additional and detailed information about data protection here.

WhatsApp Chat with us now!