Obra nueva » Apartamento » Torrevieja &raqu

Apartamento. Obra nueva Torrevieja. Alicante
Ref: NC-40187

255.000€

Apartamento. Obra nueva Torrevieja. Alicante
Ref: NC-40187

Resumen

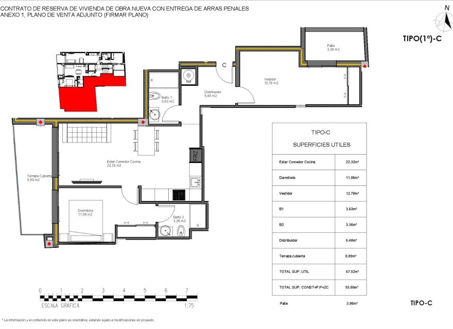
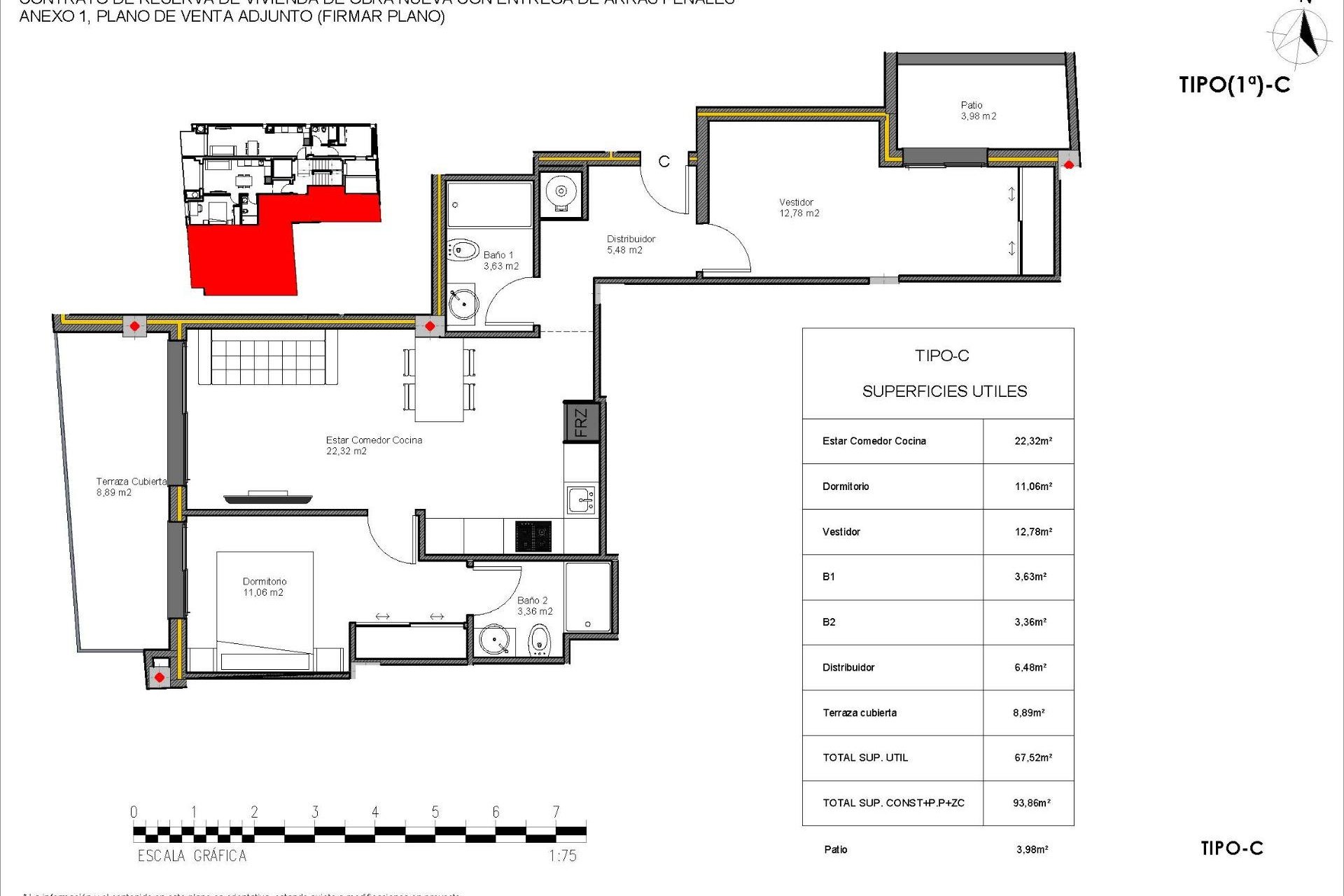
  • METROS 93m2
  • Habitaciones 2
  • Piscina Comunidad
Habitaciones: 2
Baños: 2
Construidos: 93m2
Útiles: 67m2
Piscina: Comunidad
Distancia a la playa: 400 Mts.
Cocina amueblada
Dormitorios dobles: 2
Ascensor
Piscina comunitaria
Espacio
BARBACOA
Superficie edificable útil: 67 Msq.
Tiene electricidad principal
Terraza: 13 Msq.
Playa: 400 metros
Cerca de colegios
Cerca del centro comercial
Cerca de la ruta de autobús
Ubicación: Costa
Aire acondicionado: Preinstalado

Descripción

Apartamentos de nueva construcción en Torrevieja A solo 600 m de la Playa del Cura

Localización

Realizar una consulta btn-enquiry

Responsable del tratamiento: Grupo Terrasun, SL, Finalidad del tratamiento: Gestión y control de los servicios ofrecidos a través de la página Web de Servicios inmobiliarios, Envío de información a traves de newsletter y otros, Legitimación: Por consentimiento, Destinatarios: No se cederan los datos, salvo para elaborar contabilidad, Derechos de las personas interesadas: Acceder, rectificar y suprimir los datos, solicitar la portabilidad de los mismos, oponerse altratamiento y solicitar la limitación de éste, Procedencia de los datos: El Propio interesado, Información Adicional: Puede consultarse la información adicional y detallada sobre protección de datos Aquí.

WhatsApp ¡Chatea con nosotros ahora!