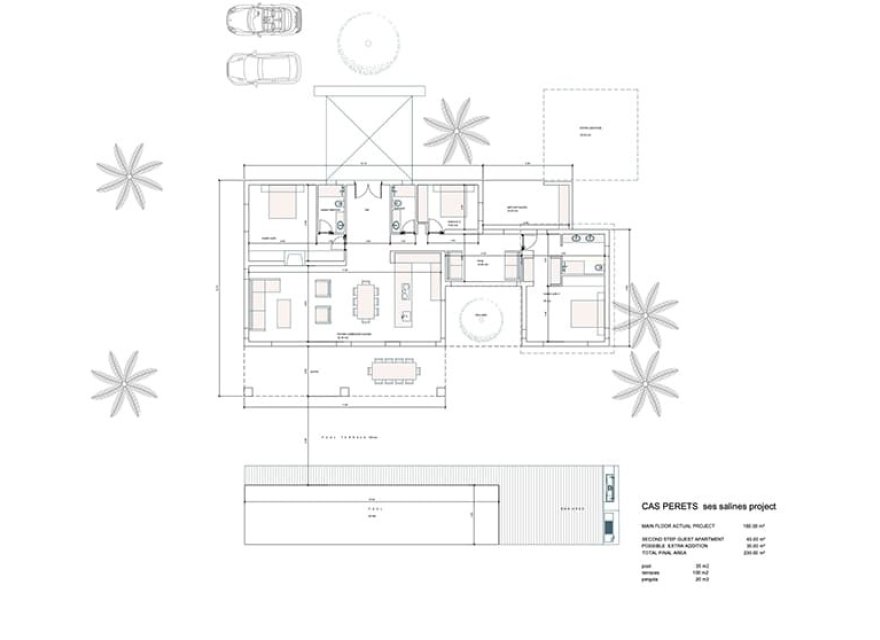
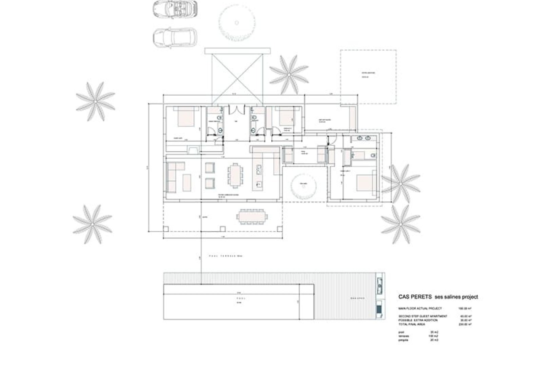
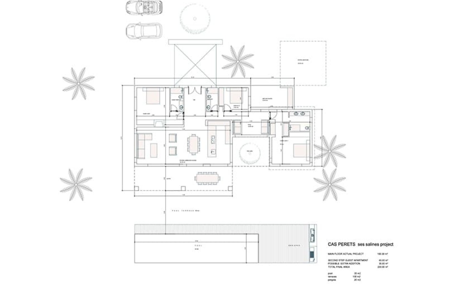
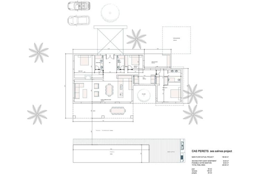
Sa Vinya de Cas Perets is a unique wine estate located in the beautiful countryside near the charming town of Ses Salines in Majorca. This exclusive property harmoniously combines traditional Mediterranean aesthetics, spacious vineyards and modern comforts. The vines create a unique atmosphere of privacy and open up the possibility of producing your own wine. The main house is 230 m² and was built to the highest quality standards. High ceilings of 3.2 m create a feeling of spaciousness and full of light. The ground floor includes a spacious living room with an open kitchen and dining area, a master bedroom with en-suite bathroom, a guest bedroom and a guest toilet, as well as a dressing room, laundry room and storage room. At basement level there are additional amenities: a separate bedroom with en-suite bathroom, a wine cellar, a home cinema, a gym and a technical room. The 60 m² swimming pool with a spacious relaxation area fits perfectly into the surrounding natural landscape. The spacious plot of 14,799 m² is surrounded by vineyards and Mediterranean vegetation, creating a unique atmosphere of privacy. This is the ideal place for those who dream of enjoying silence and nature, while remaining close to developed infrastructure and the coast.