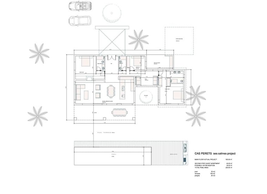
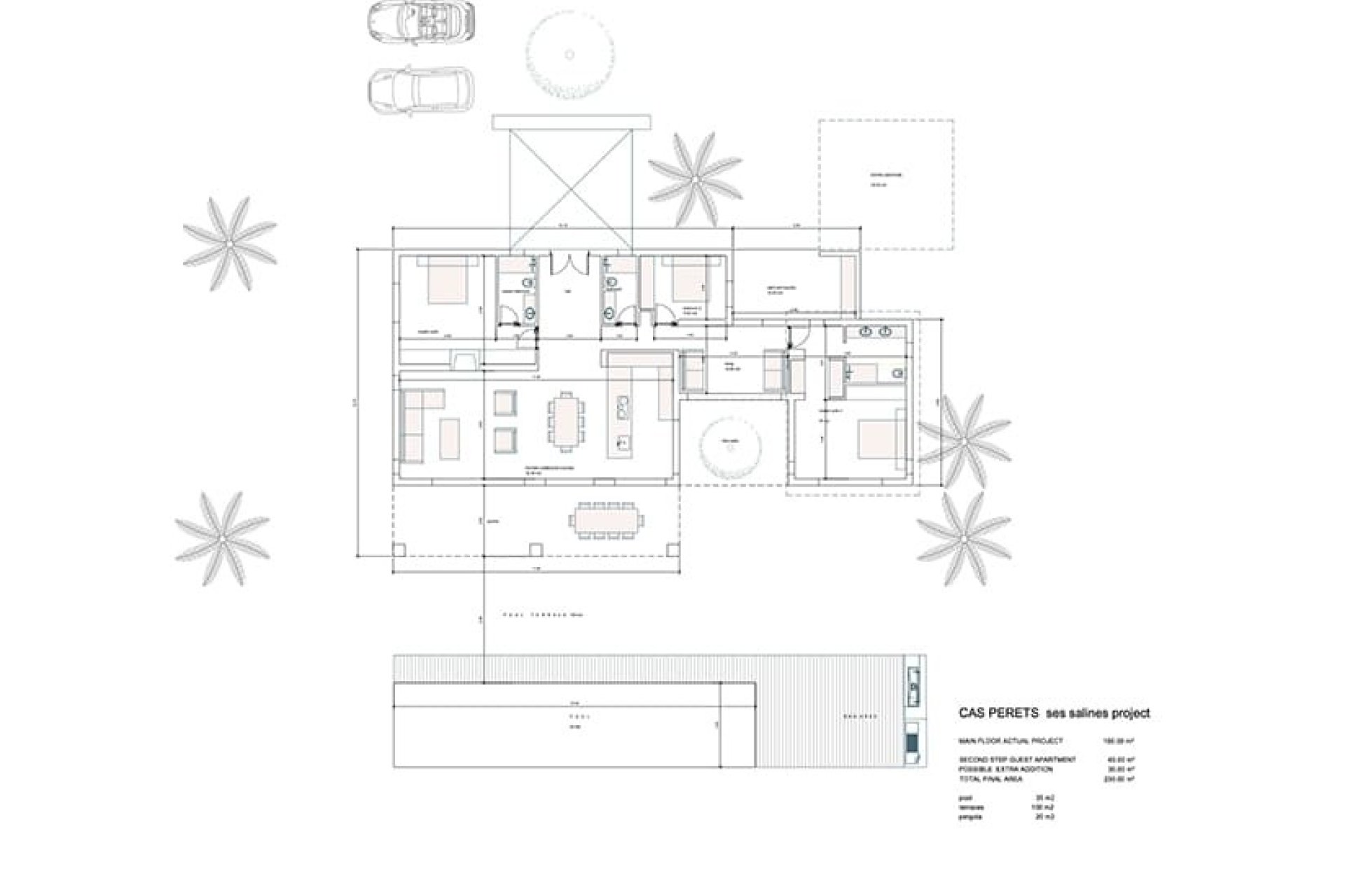
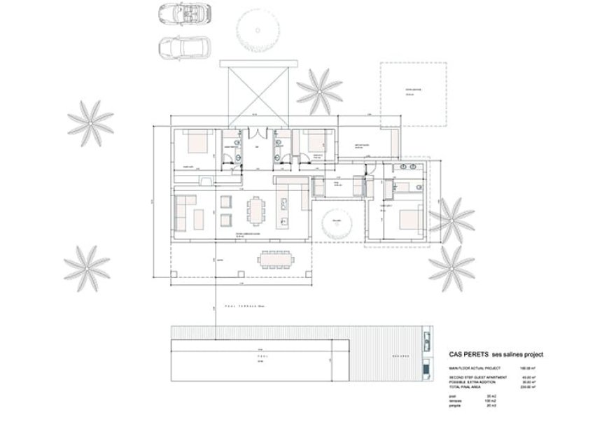
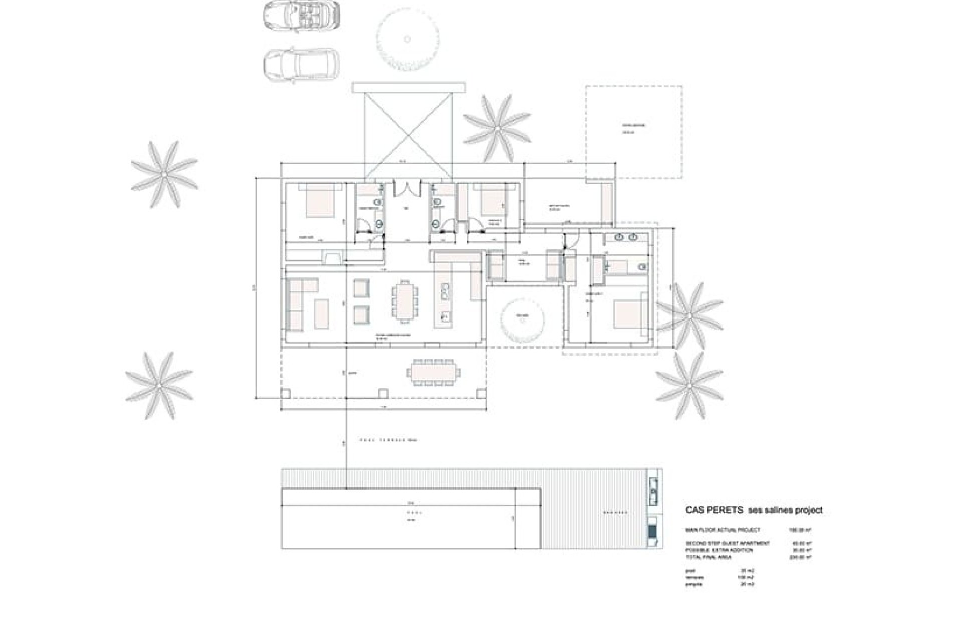
Sa Vinya de Cas Perets es una finca vinícola única situada en la hermosa campiña cerca del encantador pueblo de Ses Salines en Mallorca. Esta exclusiva propiedad combina armoniosamente la estética mediterránea tradicional, amplios viñedos y comodidades modernas. Los viñedos crean un ambiente único de privacidad y abren la posibilidad de producir su propio vino. La casa principal tiene 230 m² y se construyó siguiendo los más altos estándares de calidad. Los techos altos de 3,2 m crean una sensación de amplitud y llena de luz. La planta baja incluye un amplio salón con cocina abierta y comedor, un dormitorio principal con baño en suite, un dormitorio de invitados y un aseo, así como un vestidor, lavadero y trastero. En el sótano hay otros servicios: un dormitorio independiente con baño en suite, una bodega, una sala de cine, un gimnasio y una sala técnica. La piscina de 60 m² con una amplia zona de relajación se integra perfectamente en el paisaje natural circundante. La amplia parcela de 14.799 m² está rodeada de viñedos y vegetación mediterránea, creando un ambiente único de privacidad. Es el lugar ideal para quienes sueñan con disfrutar del silencio y la naturaleza, sin dejar de estar cerca de infraestructuras desarrolladas y de la costa.