Перепродажа » Квартира » Madrid » Mad

Квартира. Перепродажа Madrid. Madrid
Ref: RV3891VL

14.900.000€

Квартира. Перепродажа Madrid. Madrid
Ref: RV3891VL

Обзор

  • МЕТРЫ 146m2
  • Спальни 3
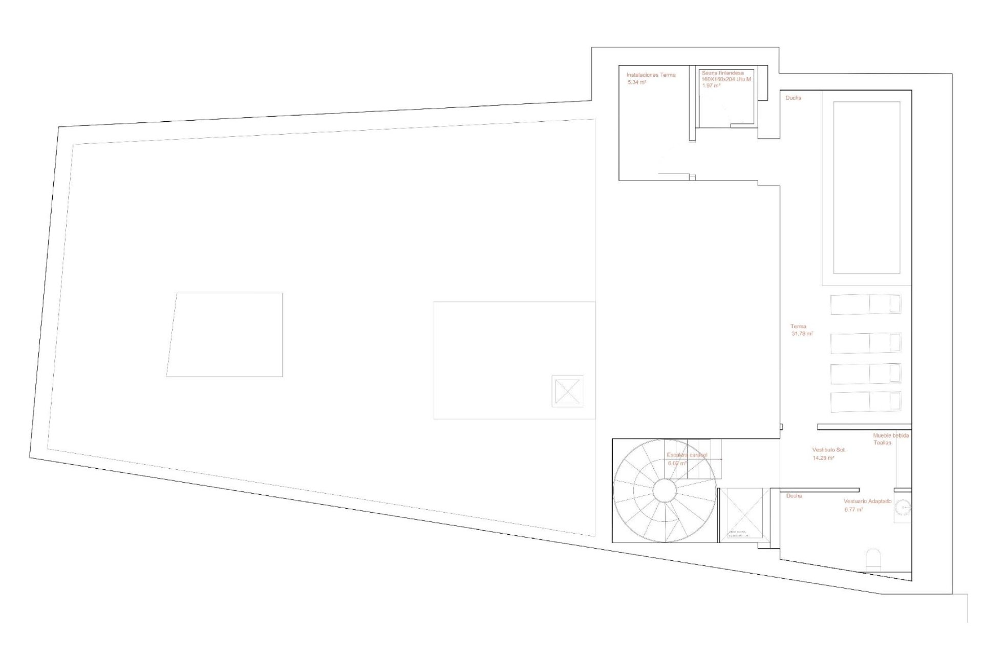
  • Бассейн Общий
Спальни: 3
Ванные комнаты: 3
Жилая площадь: 146m2
Бассейн: Общий
Меблированный
Кладовая
Рядом с магазинами
Тренажерный зал
Оборудованная кухня

Описание

Эксклюзивные дизайнерские квартиры в районе Хустисия Мадрида: бассейн, тренажёрный зал и сауна

Местоположение

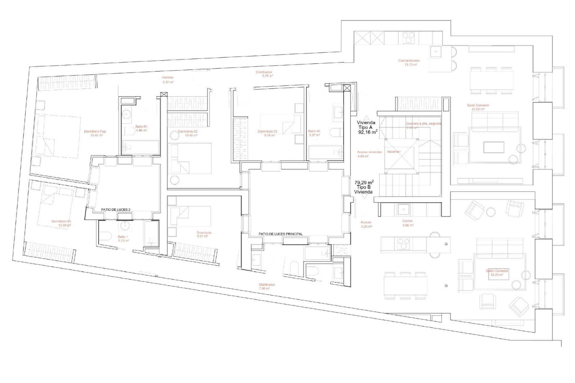
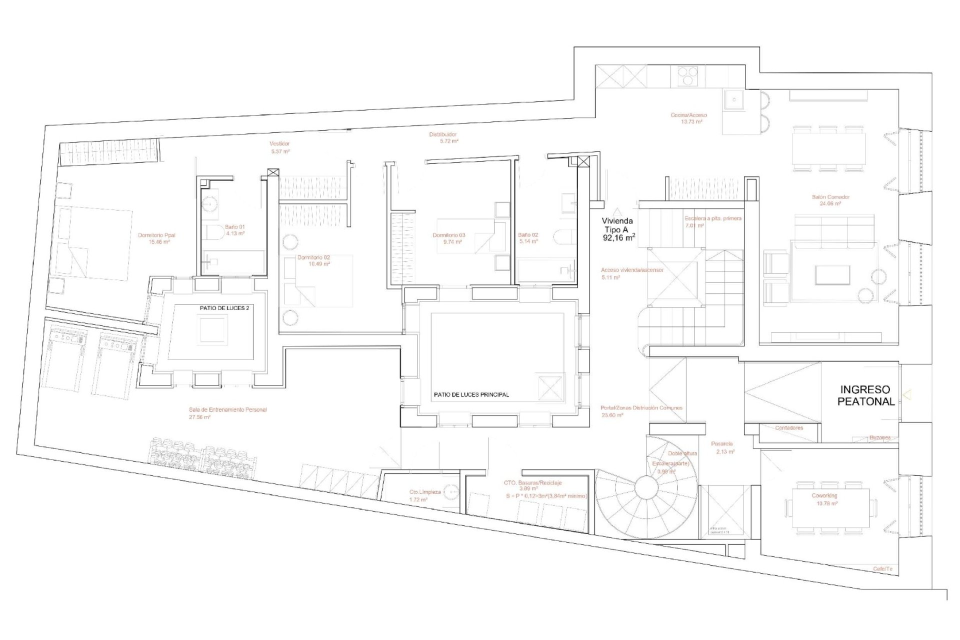
Планы

Сделать запрос btn-enquiry

Контролер данных: Grupo Terrasun, SL, Цель обработки: Управление и контроль предоставляемых услуг через сайт недвижимости, рассылка информации через информационные бюллетени и другие средства, Правовое основание: На основании согласия, Получатели: Данные не будут передаваться, за исключением бухгалтерских целей, Права субъекта данных: Право на доступ, исправление и удаление данных, запрос на перенос данных, возражение против обработки и запрос на её ограничение, Источник данных: Сам заинтересованный, Дополнительная информация: Подробную информацию о защите данных можно найти здесь.

WhatsApp Чат с нами сейчас!