Современные новые апартаменты в центре Торревьехи
Выгодное расположение всего в 150 м от моря
Этот исключительный новый комплекс расположен в самом центре Торревьехи, всего в 150 м от природных бассейнов и набережной, и всего в 500 м от Плайя-дель-Кура. В окружении широкого спектра услуг, включая магазины, супермаркеты, парки, кафе и рестораны, этот район предлагает все необходимое в нескольких минутах ходьбы. Сочетание городских удобств и прибрежной тишины делает его одним из самых привлекательных жилых районов города.
Современные апартаменты с 1 и 2 спальнями
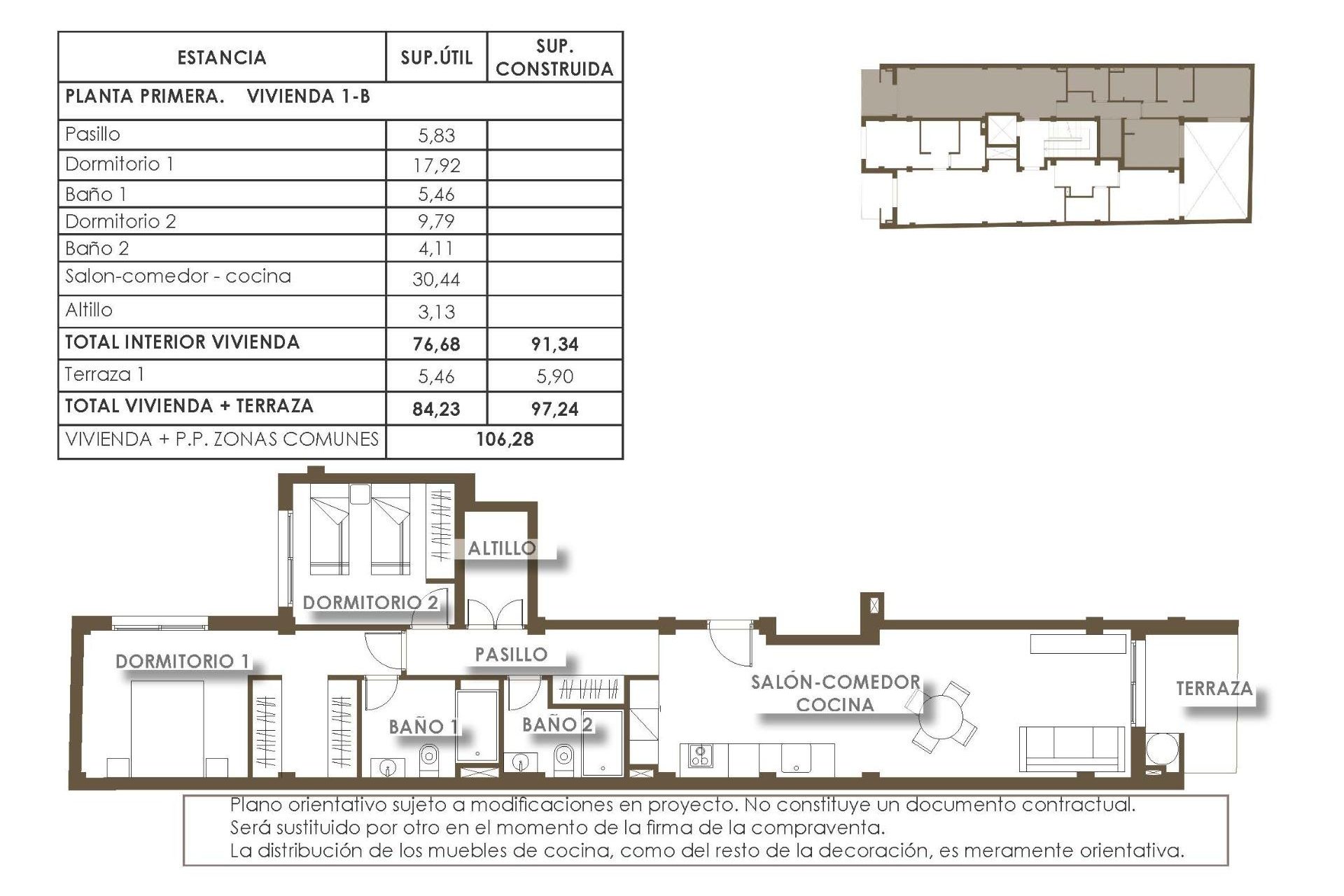
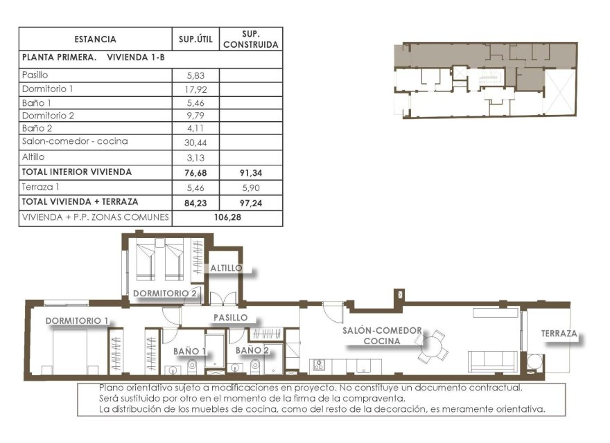
Комплекс предлагает современные апартаменты с 1 или 2 спальнями и 1 или 2 ванными комнатами, включая два эксклюзивных пентхауса с частным солярием, барбекю и частным бассейном. Все дома спроектированы с открытой планировкой, которая максимально использует естественное освещение, и включают просторные террасы и стильные кухни в американском стиле.
Каждая квартира включает в себя полностью оборудованную кухню с бытовой техникой, полностью оборудованные ванные комнаты с мебелью, душевыми перегородками и подогревом пола, а также внутреннее освещение. Также предусмотрена предварительная установка канального кондиционирования, обеспечивающего комфорт в течение всего года.
Привлекательные общие зоны для отдыха
Жители могут пользоваться отличными общими удобствами, предназначенными для благополучия и досуга. На первом этаже находится освежающий общий бассейн и расслабляющая сауна. На террасе на крыше есть общий солярий, идеально подходящий для принятия солнечных ванн и наслаждения средиземноморской атмосферой.
Наслаждайтесь уникальной прибрежной и природной средой
Торревьеха славится своим мягким средиземноморским климатом со средней годовой температурой 20 ºC, идеально подходящим для проживания круглый год. В городе находятся знаменитые соленые озера и охраняемый природный парк Ла-Мата и Торревьеха, расположенный всего в 4 км от комплекса. С его яркими розовыми и зелеными лагунами, живописными пешеходными маршрутами и разнообразной дикой природой, он обеспечивает здоровую и вдохновляющую природную среду.
Расстояния до основных достопримечательностей
Порт-депортиво-де-Торревьеха 1 км
Природный парк Ла-Мата 4 км
Гольф-клуб Вильямартин 8 км
Аэропорт Аликанте 45 км
Аэропорт Мурсия 60 км
Живите по-средиземноморски
Приобретите современный дом в одном из самых популярных прибрежных городов Коста-Бланки. Свяжитесь с нами сегодня, чтобы запланировать посещение и забронировать место в этом выдающемся новом комплексе.