Перепродажа » Участок » Binissalem »

Участок. Перепродажа Binissalem. Майорка
Ref: RV5700YM

1.995.000€

Участок. Перепродажа Binissalem. Майорка
Ref: RV5700YM

Обзор

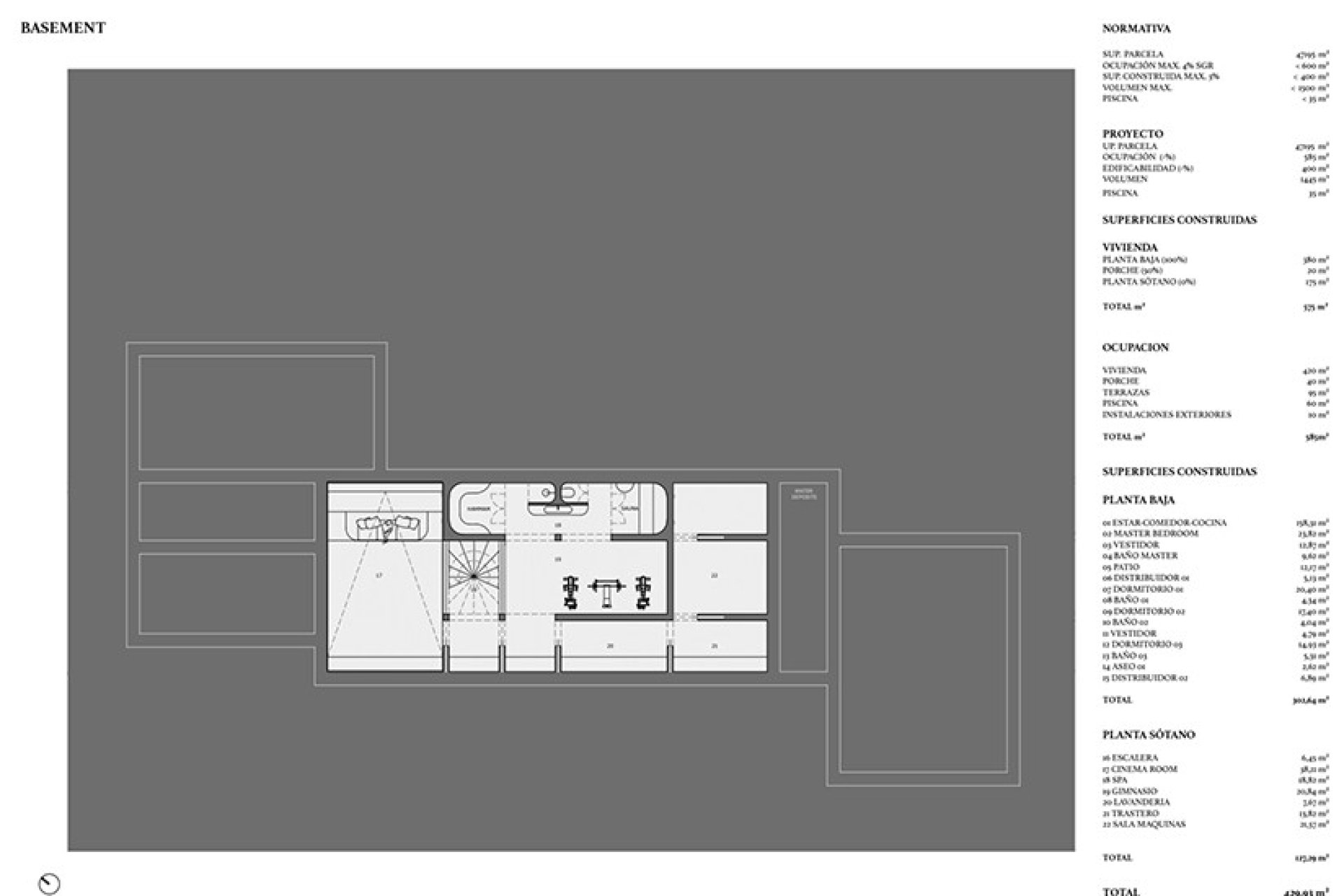
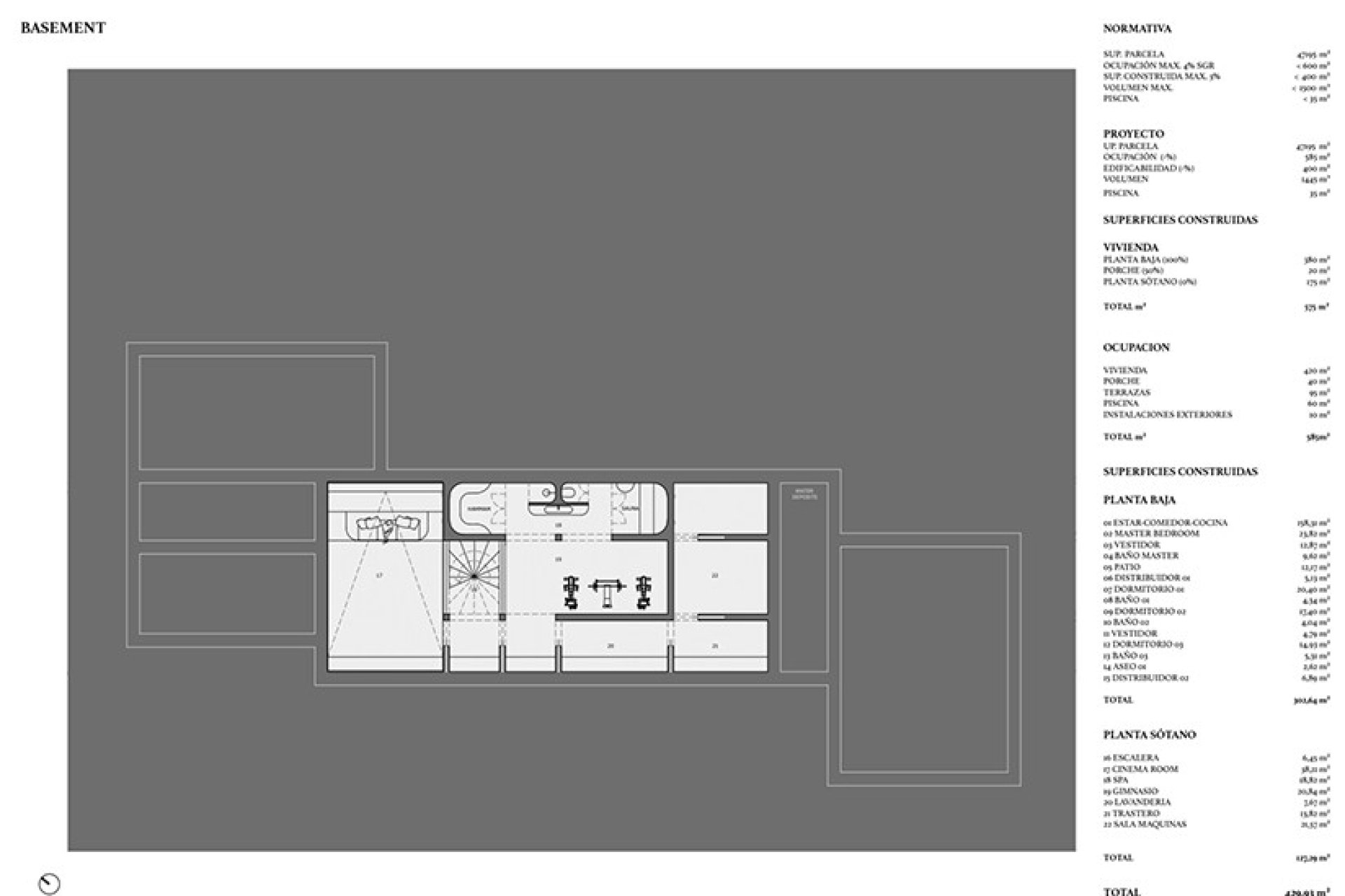
  • МЕТРЫ 430m2
  • Бассейн Частный
Жилая площадь: 430m2
Бассейн: Частный

Описание

Участок с прекрасным видом под строительство финки в Бинисалеме

Местоположение

Сделать запрос btn-enquiry

Контролер данных: Grupo Terrasun, SL, Цель обработки: Управление и контроль предоставляемых услуг через сайт недвижимости, рассылка информации через информационные бюллетени и другие средства, Правовое основание: На основании согласия, Получатели: Данные не будут передаваться, за исключением бухгалтерских целей, Права субъекта данных: Право на доступ, исправление и удаление данных, запрос на перенос данных, возражение против обработки и запрос на её ограничение, Источник данных: Сам заинтересованный, Дополнительная информация: Подробную информацию о защите данных можно найти здесь.

WhatsApp Чат с нами сейчас!