Новострой » Вилла » Monforte del Cid »

Вилла. Новострой Monforte del Cid. Alicante
Ref: NC-89850

614.000€

Вилла. Новострой Monforte del Cid. Alicante
Ref: NC-89850

Обзор

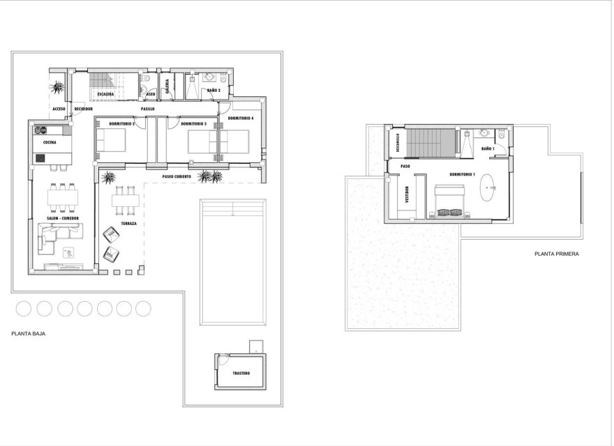
  • МЕТРЫ 223m2
  • Участок 13.172m2
  • Спальни 4
  • Бассейн Частный
Спальни: 4
Ванные комнаты: 3
Жилая площадь: 223m2
Полезная площадь: 183m2
Участок: 13.172m2
Бассейн: Частный
Расстояние до пляжа: 25000 Метров
Оборудованная кухня
Кладовая
Полезная площадь застройки: 183 кв.м.
Частный бассейн
Сад
Закрытый комплекс
Количество парковочных мест: 1
Около школ
Кондиционер: Предварительно установленный
Спальни: 4
Терраса: 34 мск.
Расположение: Гора
Пляж: 25000 метров
Парковка - место

Описание

Новые виллы, расположенные в районе Аспе.

Местоположение

Сделать запрос btn-enquiry

Контролер данных: Grupo Terrasun, SL, Цель обработки: Управление и контроль предоставляемых услуг через сайт недвижимости, рассылка информации через информационные бюллетени и другие средства, Правовое основание: На основании согласия, Получатели: Данные не будут передаваться, за исключением бухгалтерских целей, Права субъекта данных: Право на доступ, исправление и удаление данных, запрос на перенос данных, возражение против обработки и запрос на её ограничение, Источник данных: Сам заинтересованный, Дополнительная информация: Подробную информацию о защите данных можно найти здесь.

WhatsApp Чат с нами сейчас!