НОВЫЙ ЖИЛОЙ КОМПЛЕКС ИЗ БУНГАЛО АПАРТАМЕНТОВ В ВИСТАБЕЛЛЕ
Новый жилой комплекс из бунгало апартаментов в Вистабеле рядом с полем для гольфа.
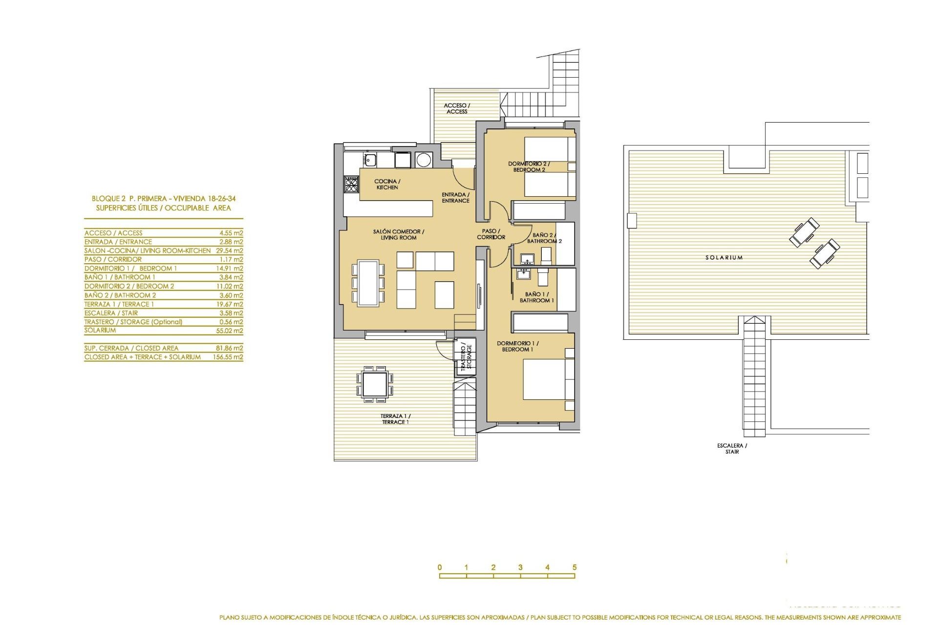
Комплекс с коммунальными зоами и бассейном состоит из 2 и 3 спальных бунгало, на первом этаже с частным садом и на верхнем этаже с частным солярием, кухней открытого плана с гостиной, встроенными шкафами, террасой.
Каждая квартира имеет частную парковку.
Кладовая за дополнительную плату.
В Vistabella Golf найдется место для каждого. Поле спроектировано так, чтобы каждый игрок мог насладиться им от начала и до конца. Волнистые улочки, стратегические бункеры и озера - вот некоторые из особенностей, которые делают его одним из самых привлекательных в этом районе, где каждый удар - это вызов и удовольствие для чувств.
18 лунок Vistabella Golf, пар 72 и длиной более 6 000 метров, были спроектированы в соответствии с рекомендациями современных полей с 4 тройниками большой амплитуды на каждой лунке, широкими фервеями и приподнятыми бункерами.
Клубный дом и ресторан Vistabella Golf, а также местные бары и магазины находятся в 5 минутах ходьбы. Оживленный город Сан-Мигель-де-Салинас и Лос-Монтесинос находятся в 5 минутах езды, а прекрасные пляжи Гвардамара, отмеченные Голубым флагом, - в 15 минутах езды.
Аэропорт Аликанте находится в 35 минутах езды, а новый аэропорт Корвера Мурсия - в 45 минутах езды.
Эта информация может подвеграться изменениям и не является частью будущего контракта. Предложение может быть изменено или отозвано без предварительного уведомления. Расходы на покупку не включены в цену обьекта
Телефон. +34 696 971 798 | +34 685 919 968
Email. info@grupoterrasun.com
Офисы.
Madrid© 2026 Grupo Terrasun, S.L. · Юридическая информация · Конфиденциальность · Файлы cookie · Карта сайта · Дизайн & CRM: Mediaelx
Прежде всего, спасибо за обращение к нам.
Прежде всего, спасибо за обращение к нам.
Мы получили запрос на получение отчета, если вы снижаете стоимость имущества со ссылкой: NC-99331
В то же время, пожалуйста, взгляните на этот выбор похожих объектов, которые могут вас заинтересовать: