НОВЫЙ ЖИЛОЙ КОМПЛЕКС С БУНГАЛО В ЛОС БАЛКОНЕС, ТОРРЕВЬЕХА
Новый жилой комплекс с великолепным видом на розовое соленое озеро в Лос Балконес.
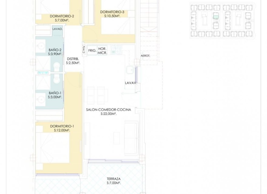
Комплекс состоит из 104 бунгало с 2 и 3 спальнями, на верхних этажах бунгало есть частные солярии с панорамным видом на соленое озеро, на нижних этажах бунгало есть большие террасы с видом на зеленую зону.
Эти бунгало имеют общую красивую зеленую территорию и 2 больших бассейна.
Дополнительно предлагаются подземная парковка и кладовые помещения.
Этот жилой комплекс предлагает современный дизайн, отборные материалы, отделку квартир по самым высоким стандартам с использованием только высококачественных материалов.
Жилой комплекс будет построен на склоне холма, благодаря чему вид из окон, а также воздух будут чистыми и уникальными.
Los Balcones расположен недалеко от Торревьехи со всеми доступными услугами, всего в 5 минутах от Playa de Los Náufragos, супермаркетов, школы и торгового центра La Zenia Boulevard, и в минуте от университетской больницы Торревьехи.
Кроме того, в нескольких минутах езды находятся 4 поля для гольфа, включая удостоенный наград гольф-клуб Las Colinas Golf & Country Club.
Комплекс расположен в 40 минутах езды от аэропорта Аликанте и в 1 часе езды от аэропорта Мурсия - Корвера.
Эта информация может подвеграться изменениям и не является частью будущего контракта. Предложение может быть изменено или отозвано без предварительного уведомления. Расходы на покупку не включены в цену обьекта
Телефон. +34 696 971 798 | +34 685 919 968
Email. info@grupoterrasun.com
Офисы.
Madrid© 2026 Grupo Terrasun, S.L. · Юридическая информация · Конфиденциальность · Файлы cookie · Карта сайта · Дизайн & CRM: Mediaelx
Прежде всего, спасибо за обращение к нам.
Прежде всего, спасибо за обращение к нам.
Мы получили запрос на получение отчета, если вы снижаете стоимость имущества со ссылкой: NC-87599
В то же время, пожалуйста, взгляните на этот выбор похожих объектов, которые могут вас заинтересовать: