Этот потрясающий дизайнерский особняк, построенный в 2008 году, расположен в тихой пешеходной зоне в самом центре Валенсии. Он предлагает идеальное сочетание комфорта, стиля и непревзойденного расположения, всего в нескольких шагах от улицы Калле-де-ла-Мар, площади Тетуан, Генеральной Капитании, Эль-Корте-Инглес, улицы Колон и садов на реке Турия. Общественный транспорт, торговые центры, школы, медицинские центры и больницы находятся в нескольких минутах ходьбы.
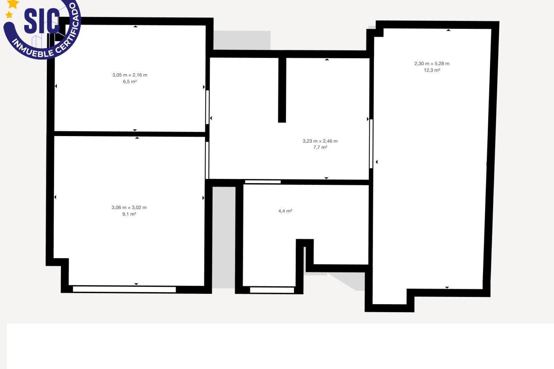
Объект состоит из подвала, цокольного этажа и двух верхних этажей, увенчанных впечатляющей частной террасой. Все уровни соединены внутренним лифтом для максимального комфорта, а элегантная внутренняя мраморная лестница обеспечивает дополнительную связь между основными этажами.
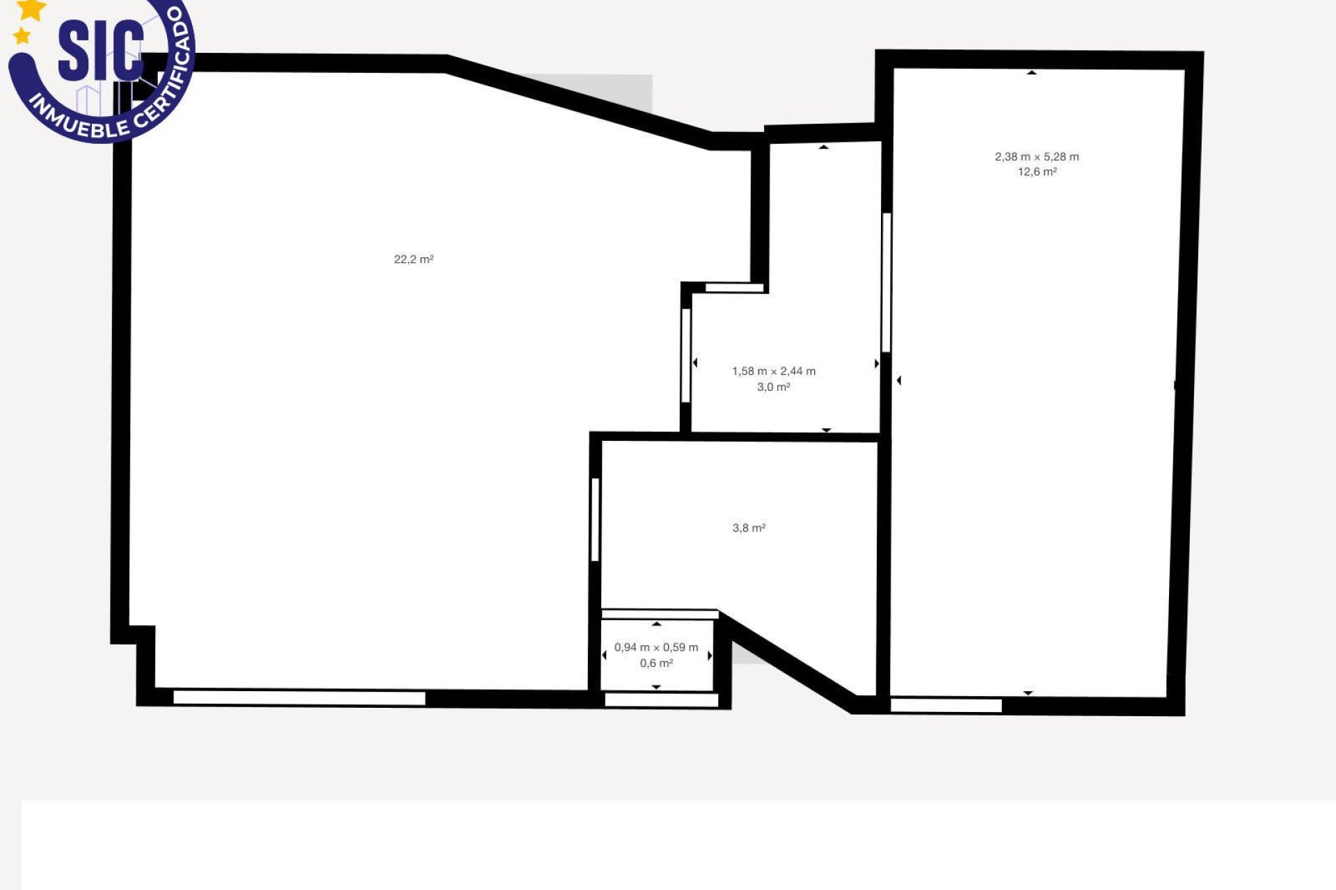
Изюминкой этого дома является просторная терраса площадью 37 м² - застекленное пространство с выдвижной биоклиматической перголой, позволяющей наслаждаться природой круглый год. То ли для чтения, то ли для обеда с друзьями, то ли для того, чтобы просто насладиться видами города, эта терраса - настоящий райский уголок.
Для комфорта в любое время года в помещении установлены системы холодного и горячего кондиционирования. Мраморный пол в местах общего пользования и паркетный пол в спальнях добавляют изысканности, а белые лакированные встроенные шкафы обеспечивают достаточно места для хранения вещей.
У входа находится уютная гостевая ванная комната, которая идеально подходит для приема гостей. Просторная кухня предлагает много места для приготовления пищи и встреч с семьей, идеально сочетая функциональность с современным дизайном.
На втором этаже находится главная спальня с отдельной ванной комнатой и камином, который создает теплую и расслабляющую атмосферу. Две дополнительные комнаты на этом же уровне можно использовать как зону для чтения, кабинет или спальню, каждая из которых имеет отдельную ванную комнату для дополнительного удобства.
Недвижимость включает в себя место для парковки и подсобное помещение, что обеспечивает практичные решения для повседневной жизни.
Проживание в центре Валенсии предлагает яркий образ жизни с магазинами, ресторанами, парками и культурными достопримечательностями под рукой. Отличное транспортное сообщение, включая метро и автобусы, позволит вам легко передвигаться по городу.
Это больше, чем дом, это стиль жизни, который сочетает в себе дизайн, комфорт и расположение в одном из самых желанных районов Валенсии.
Свяжитесь с нами сегодня, чтобы договориться о просмотре и увидеть собственными глазами, что может предложить эта исключительная недвижимость.