New Build » Villa » Fuente Álamo » La

Villa. New Build Fuente Álamo. Murcia
Ref: NC-36340

242.000€

Villa. New Build Fuente Álamo. Murcia
Ref: NC-36340

Overview

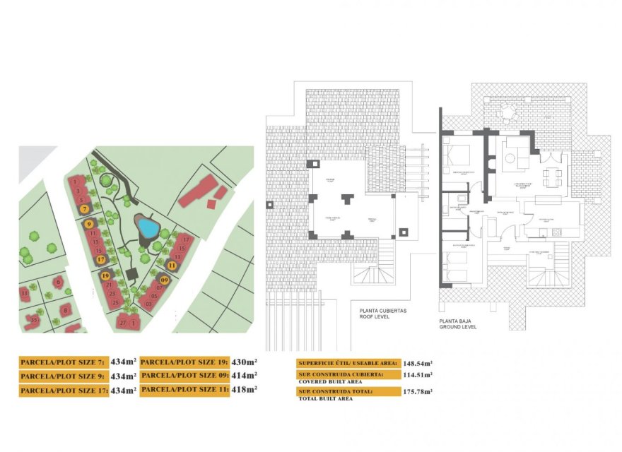
  • METERS 175m2
  • Plot 430m2
  • Bedrooms 2
  • Pool Community
Bedrooms: 2
Bathrooms: 1
Built: 175m2
Usable: 148m2
Plot: 430m2
Pool: Community
Distance to beach: 7500 Mts.
Furnished kitchen
Storage / Trastero
Garden
Gated
Number of Parking Spaces: 1
Air Conditioning: Pre-Installed
Double Bedrooms: 2
Key Ready
Location: Rural, Urbanisation
Terrace: 45 Msq.
Beach: 7500 Meters
Parking - Space
Useable Build Space: 148 Msq.

Description

KEY READY SEMI-DETACHED VILLA IN FUENTE ALAMO, MURCIA

Location

Make an enquiry btn-enquiry

Data Controller: Grupo Terrasun, SL, Purpose of Processing: Management and control of services offered through the Real Estate Services website, sending information via newsletters and other means, Legal Basis: Consent, Recipients: Data will not be shared, except for accounting purposes, Rights of Data Subjects: The right to access, rectify, and delete data, request data portability, object to processing, and request its limitation,  Source of Data: The data subject, Additional Information: You can consult additional and detailed information about data protection here.

WhatsApp Chat with us now!