Located next to Calle de la Paz, this building underwent a complete renovation in 2021, featuring high-quality construction, finishes, and furnishings throughout.
Positioned on the corner of two pedestrian streets, the building offers excellent natural light through large windows and bay windows in all exterior-facing areas.
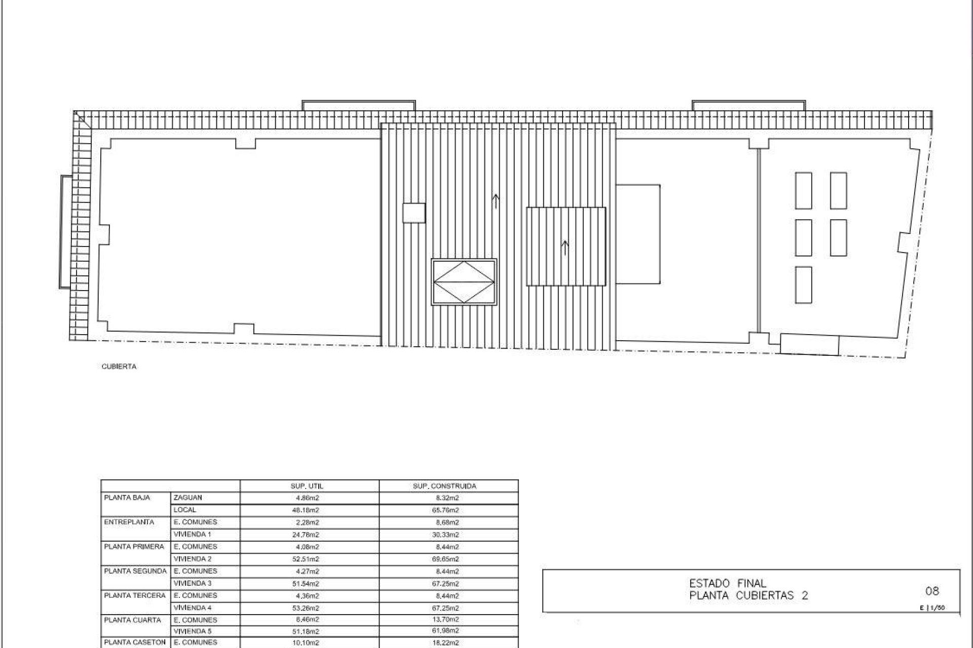
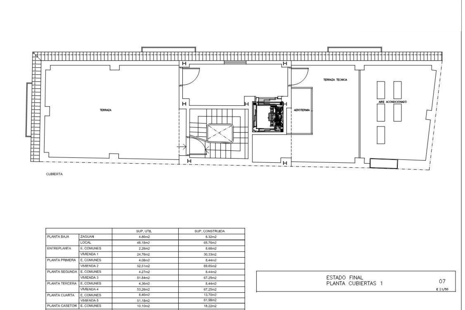
A ground-level elevator provides access to all floors, reaching the fifth-floor communal terrace and utility area equipped with air conditioning, aerothermal system, and a central heating boiler.
Layout:
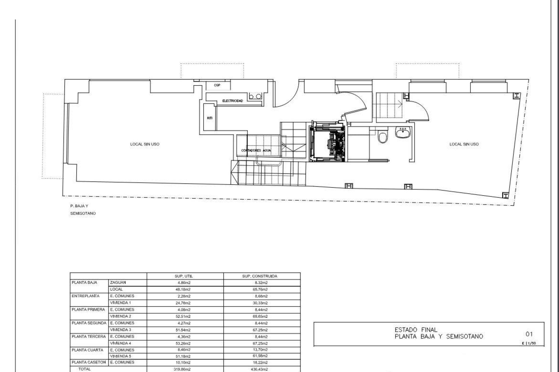
Ground Floor: 30 + 30 m² commercial/workshop/tertiary space with a bathroom.
Mezzanine: 23 m² apartment with one bedroom, kitchen, and bathroom.
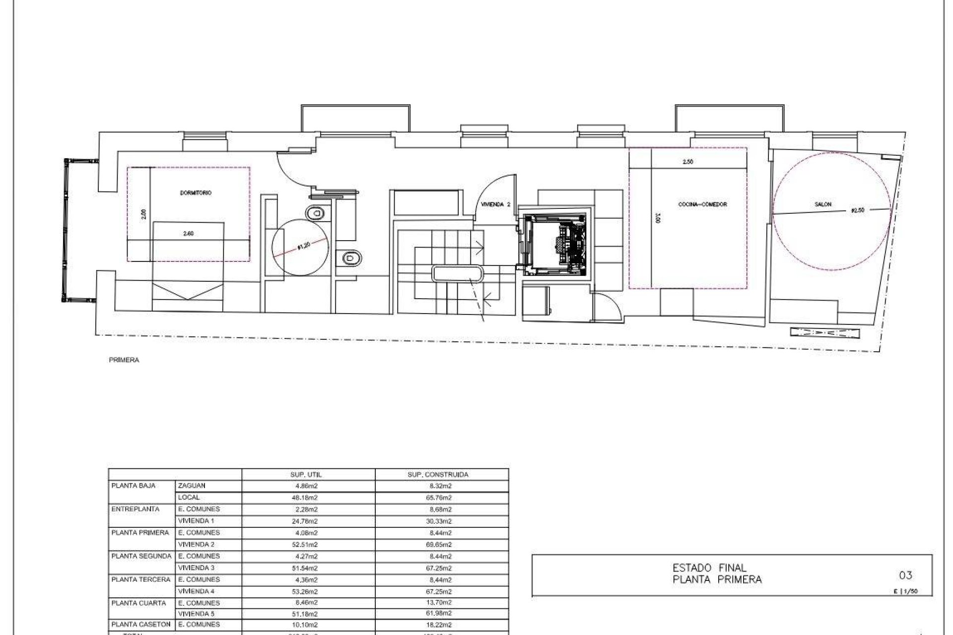
First Floor: 62 m² apartment with a living room and kitchen, two bedrooms, and two bathrooms.
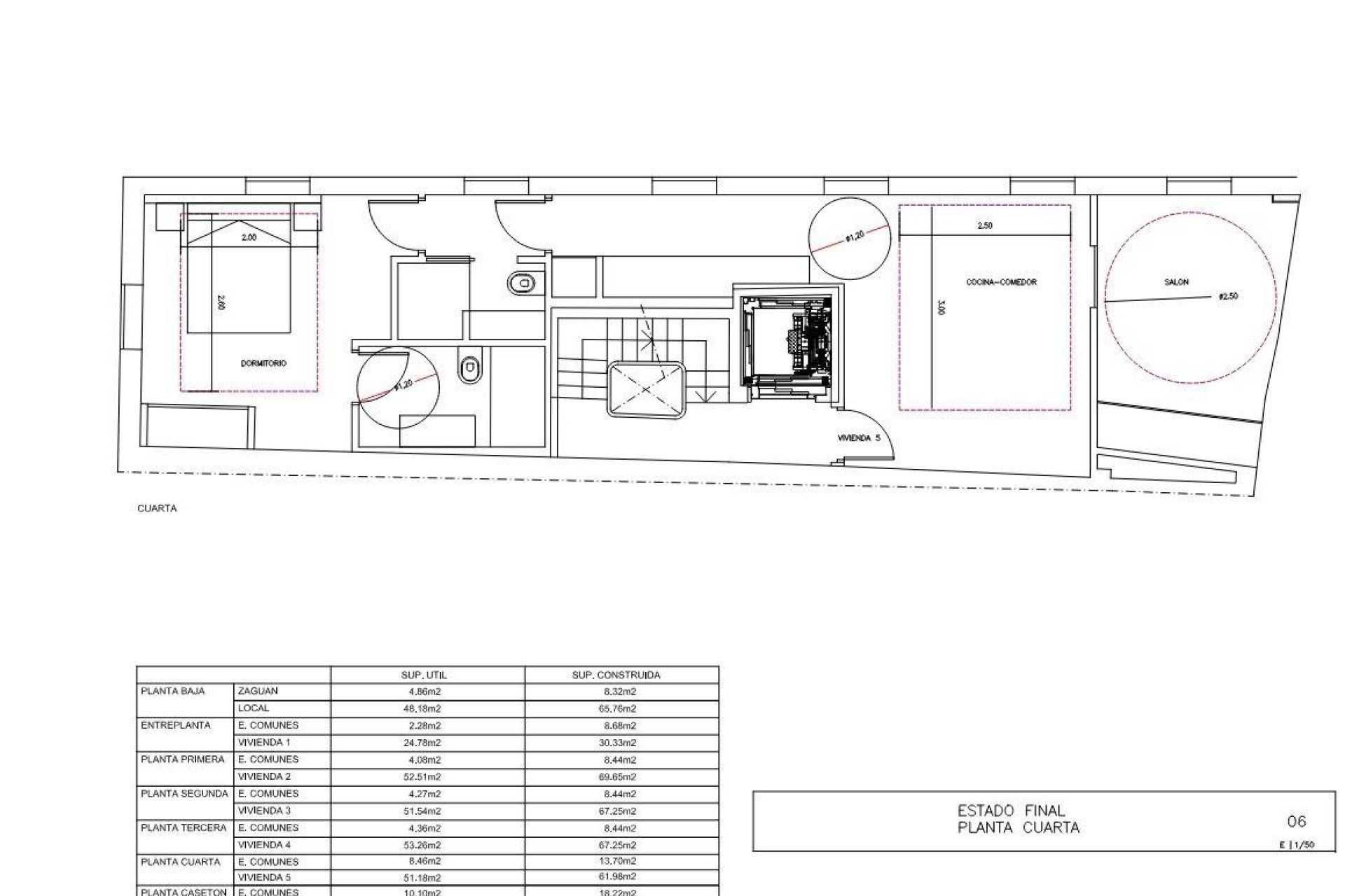
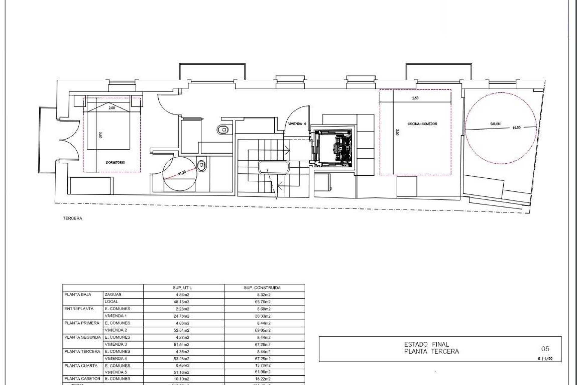
Second, Third, and Fourth Floors: Each floor offers a 60 m² apartment with a living room and kitchen, two bedrooms, and two bathrooms.
Fifth Floor: Laundry room, terraces, hydraulic elevator shaft, and staircase.
The property is sold fully furnished and includes all appliances, such as refrigerator, equipped kitchen, washing machine, oven, and dishwasher.