Fantastyczna posiadłość w budowie w Santa Maria

Willa. Nowa konstrukcja Santa María del Camí. Majorka
Ref: NC7422YM

4.290.000€

Willa. Nowa konstrukcja Santa María del Camí. Majorka
Ref: NC7422YM

Przegląd

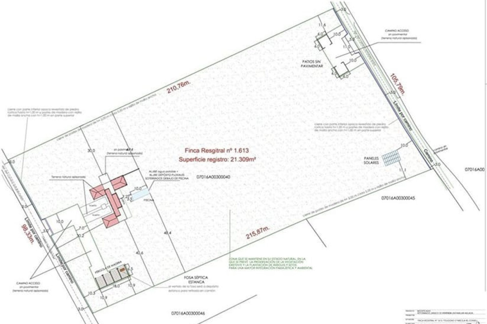
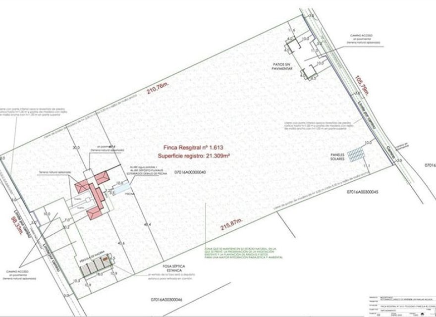
  • METRY 490m2
  • Sypialnie 4
  • Basen Prywatny
Sypialnie: 4
Łazienki: 3
Powierzchnia: 490m2
Basen: Prywatny
Wyposażona kuchnia
Klimatyzacja
Ogrzewanie
Garaż/Parking
Basen
Taras

Opis

Fantastyczna posiadłość w budowie w Santa Maria

Lokalizacja

btn-enquiry

Administrator danych: Grupo Terrasun, SL, Cel przetwarzania: Zarządzanie i kontrola usług oferowanych za pośrednictwem strony internetowej nieruchomości, wysyłanie informacji za pomocą newsletterów i innych środków, Podstawa prawna: Na podstawie zgody, Odbiorcy: Dane nie będą udostępniane, z wyjątkiem celów księgowych, Prawa osób, których dane dotyczą: Prawo dostępu, sprostowania i usunięcia danych, żądanie przenoszenia danych, sprzeciw wobec przetwarzania oraz żądanie jego ograniczenia, Źródło danych: Sam zainteresowany, Dodatkowe informacje: Szczegółowe informacje o ochronie danych można znaleźć tutaj.

WhatsApp Czat z nami teraz!