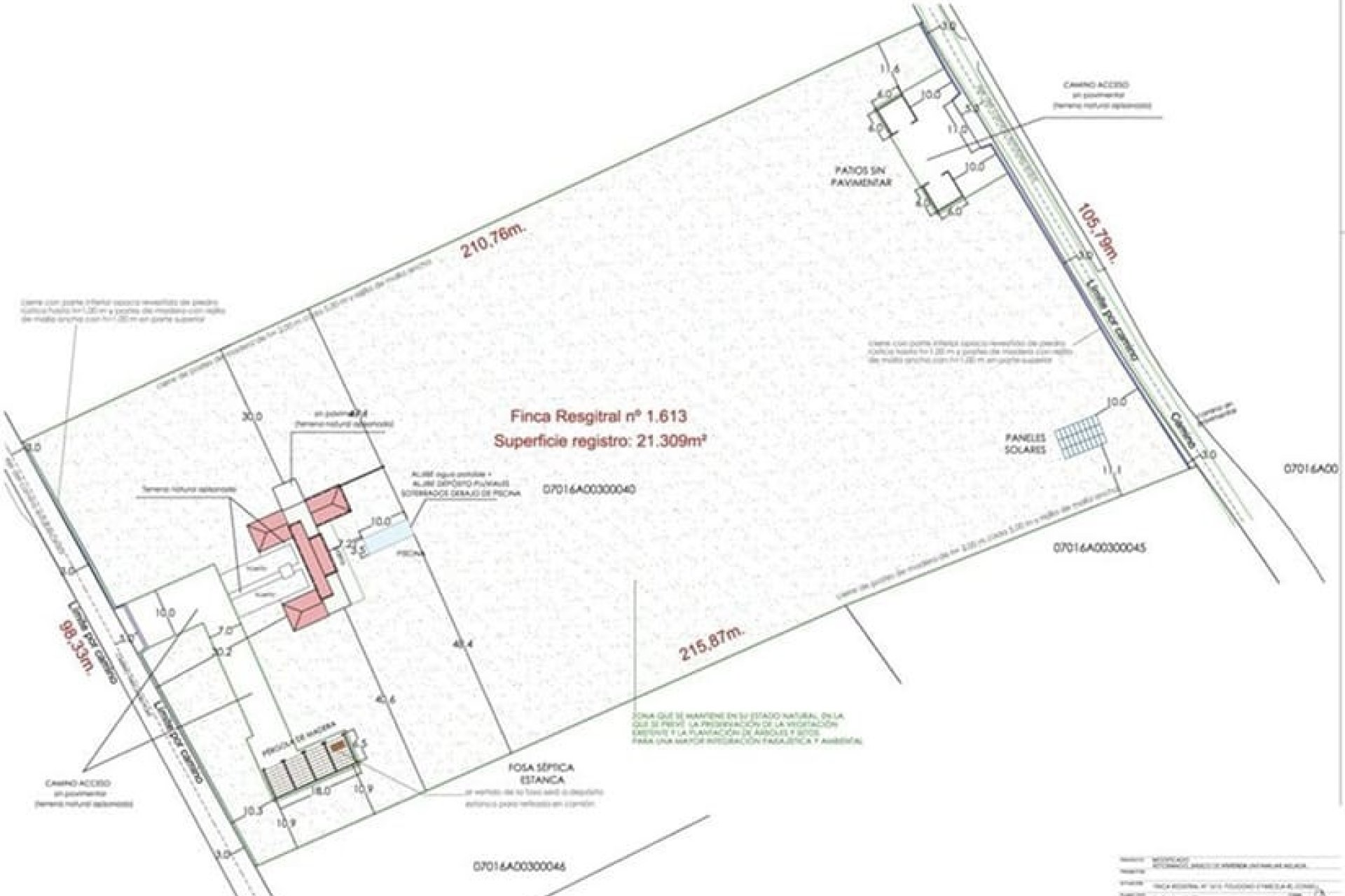
Fantástica finca en construcción en Santa María

Villa. Obra nueva Santa María del Camí. Mallorca
Ref: NC7422YM

4.290.000€

Villa. Obra nueva Santa María del Camí. Mallorca
Ref: NC7422YM

Resumen

  • METROS 490m2
  • Habitaciones 4
  • Piscina Privada
Habitaciones: 4
Baños: 3
Construidos: 490m2
Piscina: Privada
Aire acondicionado
Calefacción
Garaje/Aparcamiento
Piscina
Terraza
Cocina amueblada

Descripción

Fantástica finca en construcción en Santa María

Localización

Realizar una consulta btn-enquiry

Responsable del tratamiento: Grupo Terrasun, SL, Finalidad del tratamiento: Gestión y control de los servicios ofrecidos a través de la página Web de Servicios inmobiliarios, Envío de información a traves de newsletter y otros, Legitimación: Por consentimiento, Destinatarios: No se cederan los datos, salvo para elaborar contabilidad, Derechos de las personas interesadas: Acceder, rectificar y suprimir los datos, solicitar la portabilidad de los mismos, oponerse altratamiento y solicitar la limitación de éste, Procedencia de los datos: El Propio interesado, Información Adicional: Puede consultarse la información adicional y detallada sobre protección de datos Aquí.

WhatsApp ¡Chatea con nosotros ahora!