Розкішні новобудови вілл у Сьєрра-Кортіна, Фінестрат
Дослідіть елегантний новий комплекс незалежних вілл у ексклюзивному районі Сьєрра-Кортіна, Фінестрат.
Розташовані в мальовничому районі поблизу Бенідорма, ці преміальні об'єкти пропонують сучасні житлові простори та першокласні зручності.
Завдяки легкому доступу до узбережжя Середземного моря, ці вілли ідеально підходять для тих, хто шукає поєднання розкоші, комфорту та зручності.
Всього за 5 км від жвавого центру Бенідорма, цей комплекс також розміщує вас недалеко від основних визначних пам'яток.
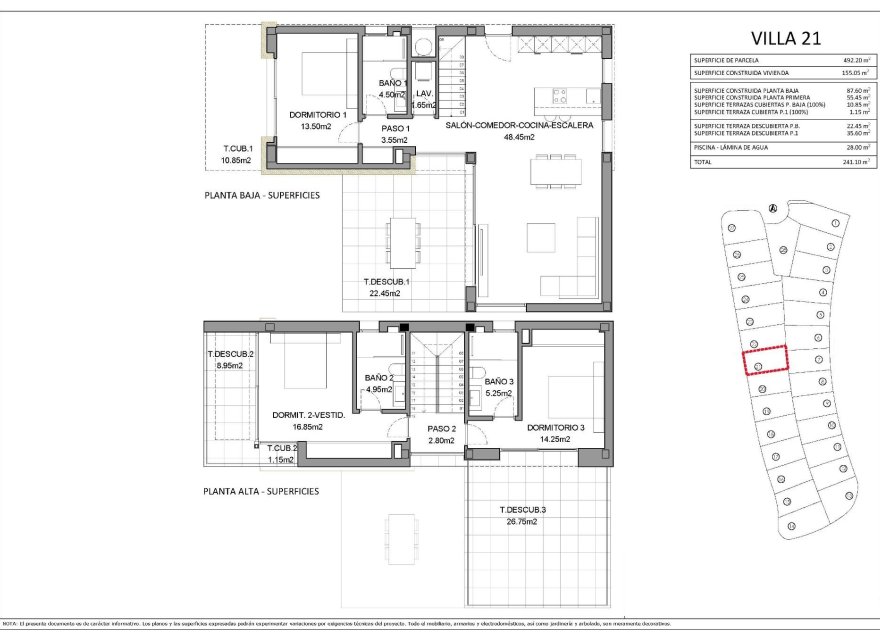
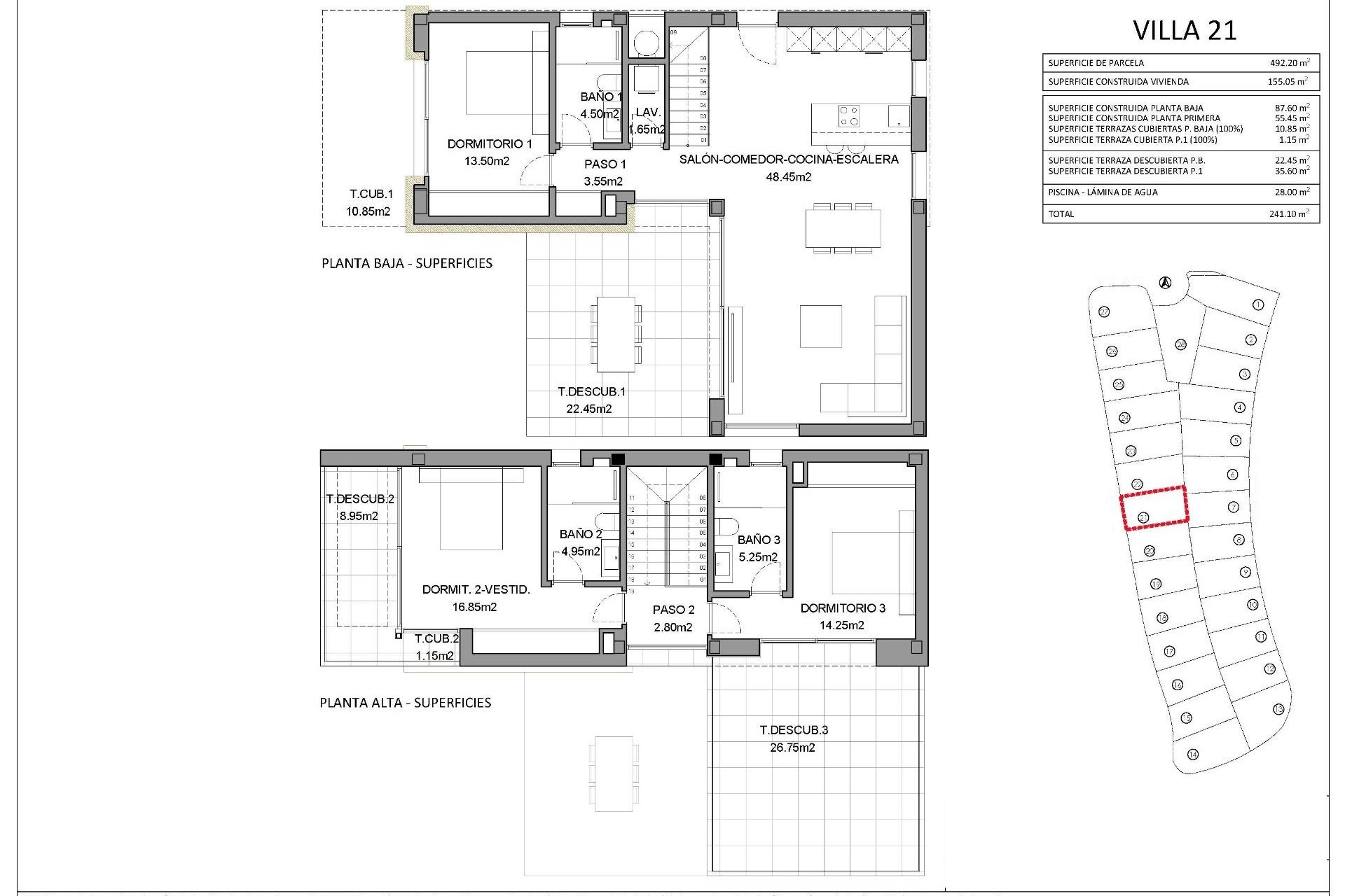
Просторі та сучасні вілли з 3 або 4 спальнями
Кожна вілла в цьому новому комплексі має 3 або 4 спальні та 3 розкішні ванні кімнати, створюючи достатньо місця як для сім'ї, так і для гостей.
Серцем цих будинків є вітальня та їдальня відкритого планування, поєднані з елегантною, інтегрованою кухнею.
Цей універсальний простір ідеально підходить для сімейних зустрічей та розваг, створюючи затишну, але сучасну атмосферу.
Деякі квартири також включають підвал, який можна переобладнати під тренажерний зал, домашній кінотеатр або зону відпочинку, що пропонує безмежні можливості для персоналізації.
Передова домашня автоматизація та енергоефективний дизайн
Ці вілли спроектовані з використанням найновіших технологій розумного дому.
Повністю автоматизовані за допомогою найсучаснішої системи домашньої автоматизації, мешканці можуть легко керувати освітленням, жалюзі та кондиціонером.
Безпека також є пріоритетом, завдяки інтегрованим системам виявлення затоплення та пожежі, відеодомофону та функціям дистанційного керування безпекою.
Для забезпечення енергоефективності вілли використовують природне освітлення, перехресну вентиляцію, захист від вітру та функції водозбереження, що знижує витрати на енергію, зберігаючи при цьому комфортні умови проживання.
Приватні відкриті простори з басейном та ландшафтним садом
Насолоджуйтесь середземноморським кліматом у приватному саду, який служить особистим оазисом.
Кожна вілла має приватний басейн, ідеальний для охолодження в теплі дні або проведення літніх зустрічей.
Ландшафтний сад прикрашений натуральною травою та деревами, підтримується автоматичною системою поливу, та має стильне зовнішнє освітлення для створення розслаблюючої атмосфери після заходу сонця.
Чудове розташування поблизу Бенідорма та ключових визначних пам'яток
Ці вілли в Сьєрра-Кортіна розташовані поблизу ключових напрямків.
Жваві пляжі Бенідорма розташовані лише за 4 км, а аеропорт Аліканте-Ельче — приблизно за 50 км.
Любителі гольфу знайдуть поруч кілька престижних полів для гольфу, таких як Villaitana Golf, що знаходиться лише за 3 км.
Для шопінгу та харчування, торговий центр La Marina знаходиться за 2 км, що забезпечує доступ до різноманітних магазинів, ресторанів та розважальних закладів.
Розкішне життя в Сьєрра-Кортіна – забронюйте будинок своєї мрії вже сьогодні
Відкрийте для себе поєднання елегантності, комфорту та передових технологій у цих новозбудованих віллах у Сьєрра-Кортіна.
Не пропустіть можливість придбати будинок в одному з найпопулярніших місць на Коста-Бланці.
Зв'яжіться з нами сьогодні, щоб домовитися про візит та відчути стиль життя, який чекає на вас.