Ексклюзивна колекція екологічно чистих незалежних вілл
Цей престижний комплекс включає 36 незалежних вілл у популярній урбанізації Bahia Golf у Фінестраті, лише за 3,5 км від узбережжя Середземного моря. Ці сучасні будинки, розроблені для поєднання розкоші, комфорту та екологічності, пропонують винятковий спосіб життя на Коста-Бланці, в оточенні природи, але поруч з усіма послугами.
Кожна вілла пропонує 3 або 4 просторі спальні, приватні ландшафтні сади та приватний пейзажний басейн. Вибрані квартири мають приголомшливий вид на море, а всі об'єкти розташовані на великих ділянках площею понад 500 м2 із забудованою площею від 222 м2.
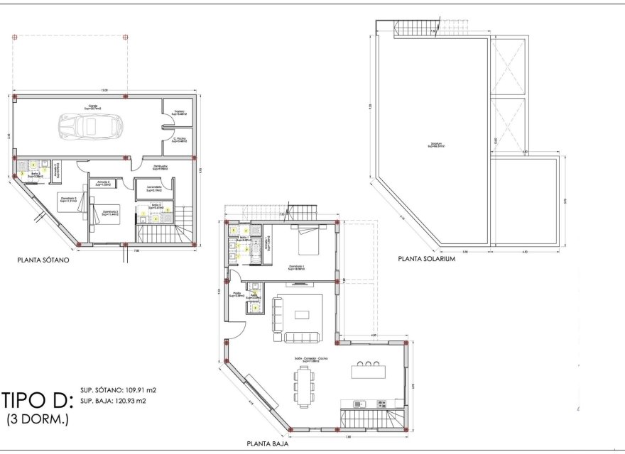
Гнучкі планування з підвалом та солярієм на даху
Покупці можуть вибрати з чотирьох різних планувань, усі ретельно розроблені для максимального використання простору та природного освітлення. Кожна вілла включає підвал з приватною парковкою, коморою, пральнею та двома спальнями з власними ванними кімнатами, з'єднаними з англійським патіо для природного освітлення та вентиляції.
На першому поверсі розташовані одна або дві додаткові спальні з власними ванними кімнатами, гостьовий туалет та кухня відкритого планування, з'єднана з вітальнею та їдальнею, з прямим виходом на терасу та басейн. Кожну віллу вінчає солярій на даху, звідки відкривається панорамний вид на гори або море, а також можливість встановити джакузі.
Високоякісне оздоблення та енергоефективність BREEAM
Ці вілли побудовані відповідно до стандартів сертифікації BREEAM, що гарантує відмінну енергоефективність та екологічну відповідальність. Преміальні характеристики включають:
Подвійні алюмінієві вікна з терморозривом та електричними жалюзі
Повністю встановлений канальний кондиціонер
В'їзні ворота для моторизованого транспорту
Приватний басейн та ландшафтний сад
Сучасна кухня PORCELANOSA, обладнана побутовою технікою
Дизайнерські ванні кімнати з меблями, дзеркалами та душовими кабінами
Порцелянова плитка PORCELANOSA
Чудове розташування поруч із пляжами, гольф-клубом та магазинами
Фінестрат – це чарівне містечко, розташоване між горами та морем, яке пропонує спокій, знаходячись лише за кілька хвилин від жвавого Бенідорма. Район поєднує природну красу з чудовою інфраструктурою, міжнародними школами, ресторанами та торговими центрами.
Відстані до ключових визначних місць
Пляжі Бенідорма 3,5 км
Торговий центр La Marina 1 км
Поле для гольфу Puig Campana 3 км
Старе місто Бенідорма 4 км
Аеропорт Аліканте 55 км
Доступ до автомагістралі A7 2 км
Живіть середземноморською мрією у Фінестраті
Ці вілли пропонують ідеальний баланс між розкішшю, природою та транспортним сполученням на Коста-Бланці. Зв'яжіться з нами сьогодні, щоб отримати більше інформації або домовитися про приватний перегляд цих виняткових новозбудованих будинків у Фінестраті.