Житлові квартири в новобудові в Los Balcones, Торревєха

Бунгало. Новобудова Torrevieja. Alicante
Ref: NC-60358

340.000€

Бунгало. Новобудова Torrevieja. Alicante
Ref: NC-60358

Огляд

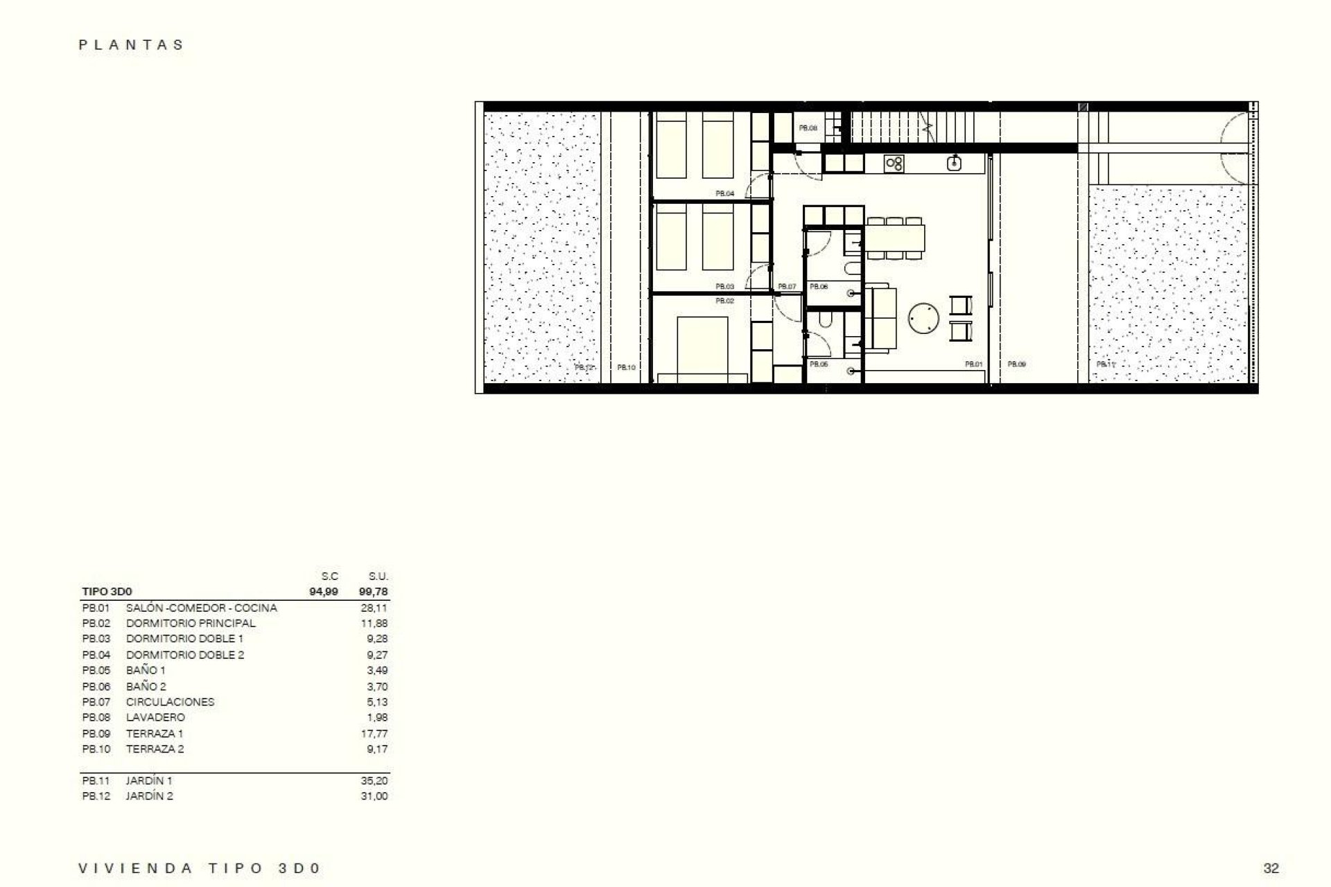
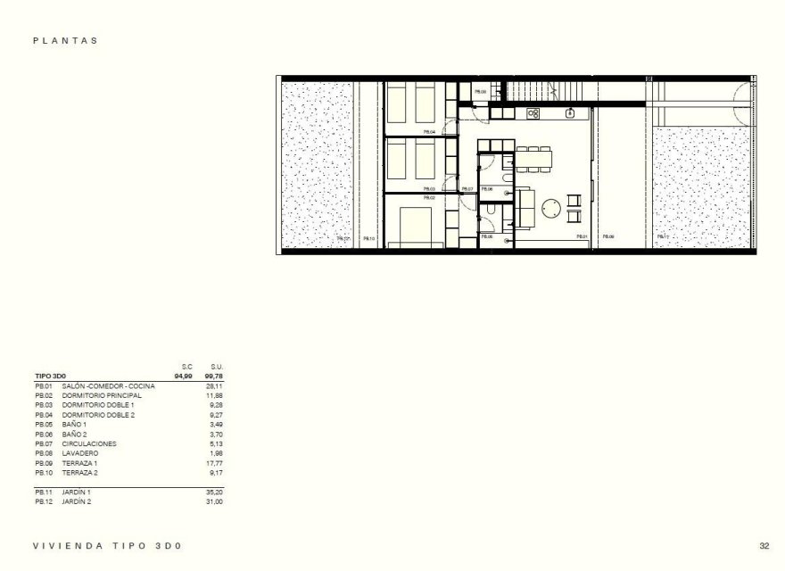
  • МЕТРИ 99m2
  • Ділянка 76m2
  • Спальні 3
  • Басейн Загальний
Спальні: 3
Ванні кімнати: 2
Збудовано: 99m2
Корисні: 94m2
Ділянка: 76m2
Басейн: Загальний
Відстань до пляжу: 3500 м
Furnished
Обладнана кухня
Сад
Закритий комплекс
Кількість паркувальних місць: 1
Поруч зі школами
Поруч із комерційним центром
Кондиціонер: Попередньо встановлений
Двомісні спальні: 3
Корисна будівельна площа: 94 кв. м.
Спільний басейн
Локація: Прибережна, Урбанізація
Тераса: 27 Msq.
Пляж: 3500 метрів
Парковка - простір
Комора

Опис

Житлові квартири в новобудові в Los Balcones, Торревєха

Локація

Зробити запит btn-enquiry

Оператор даних: Grupo Terrasun, SL, Мета обробки: Управління та контроль послуг, що надаються через сайт нерухомості, надсилання інформації через розсилки та інші канали, Правова підстава: За згодою, Одержувачі: Дані не будуть передані, за винятком бухгалтерських цілей, Права суб’єктів даних: Право на доступ, виправлення та видалення даних, запит на перенесення, заперечення проти обробки та її обмеження, Джерело даних: Сам зацікавлений, Додаткова інформація: Детальну інформацію про захист даних можна знайти тут.

WhatsApp Чат із нами зараз!