Ексклюзивний новий проект у районі Беналуа
Відкрийте для себе виняткову можливість придбати стильний дуплекс-лофт у Беналуа, одному з найжвавіших та найзручніших районів Аліканте. Цей унікальний проект перетворює шість невикористовуваних комерційних приміщень на сучасні житлові лофти, пропонуючи сучасний міський спосіб життя лише за 1 км від узбережжя Середземного моря. Беналуа відома своїми місцевими магазинами, кафе, культурними заходами та близькістю до центру міста, що робить її дуже популярним районом як для мешканців, так і для інвесторів.
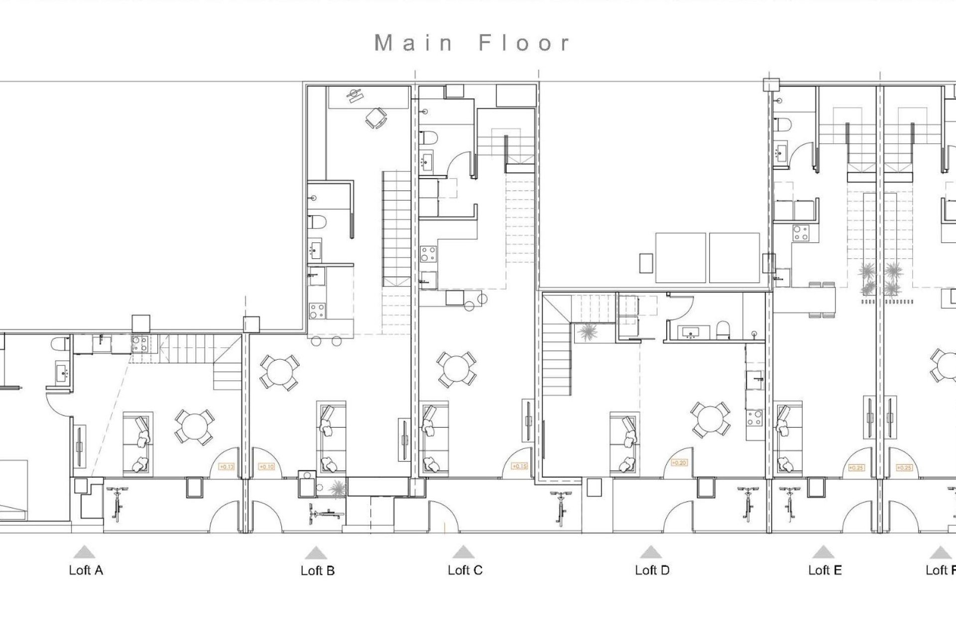
Сучасний дизайн у стилі лофт
Кожен будинок був повністю перероблений, щоб запропонувати свіжий, відкритий та елегантний житловий простір. Пропозиція включає дуплекс-лофти з 1 та 2 спальнями та 2 ванними кімнатами, всі з вражаючими зонами подвійної висоти, що покращують природне освітлення та створюють справжню атмосферу лофту. На верхньому поверсі розташована спальня та повноцінна ванна кімната, що створює приватність та комфорт.
З незалежним доступом з вулиці та приватною терасою, кожна квартира поєднує сучасну архітектуру з практичним життям. Високоякісне оздоблення, сучасне планування та світлі інтер'єри роблять ці лофти чудовим вибором для тих, хто шукає стиль та функціональність.
Комфорт та зручності для громади
Мешканці матимуть доступ до громадського басейну, розташованого в будівлі, що забезпечує розслаблюючу та освіжаючу атмосферу для теплих середземноморських днів. Приватні тераси та окремі входи додають додаткового рівня зручності та ексклюзивності.
Чудове розташування поруч із ключовими пам'ятками
Ідеально розташований як для проживання, так і для інвестицій, комплекс оточений важливими послугами та основними визначними пам'ятками:
Пляж Аліканте: 1 км
Залізнична станція Ренфе: 0,8 км
Торговий центр El Corte Inglés: 0,7 км
Палац правосуддя Аліканте: 0,5 км
Аеропорт Аліканте: 12 км
Марина та порт Аліканте: 2 км
Поля для гольфу (Alicante Golf): 7 км
Район пропонує чудове сполучення громадським транспортом, культурні заклади, зелені зони та легкий доступ до прекрасних пляжів міста.
Розумна інвестиція в прибережний спосіб життя Аліканте
Незалежно від того, чи шукаєте ви основне житло, нерухомість для відпочинку чи інвестицію з високим потенціалом для здачі в оренду, ці дуплексні лофт-апартаменти в Беналуа представляють собою унікальну можливість в одному з найперспективніших районів Аліканте.
Зв'яжіться з нами сьогодні, щоб забронювати свій ексклюзивний лофт і насолодитися сучасним життям у самому серці Аліканте.