Nowoczesne apartamenty w samym sercu Torrevieja, zaledwie 600 m od morza
Ekskluzywna inwestycja w centrum Torrevieja
Odkryj ekskluzywny projekt mieszkaniowy obejmujący tylko 7 nowoczesnych apartamentów, idealnie położonych w tętniącym życiem centrum Torrevieja w prowincji Alicante. Te stylowe domy, położone zaledwie 600 m od brzegu morza, doskonale łączą zalety życia na wybrzeżu z wygodami miejskiego stylu życia, oferując łatwy dostęp do sklepów, restauracji i obiektów rekreacyjnych.
Nowoczesny design i przemyślany rozkład pomieszczeń
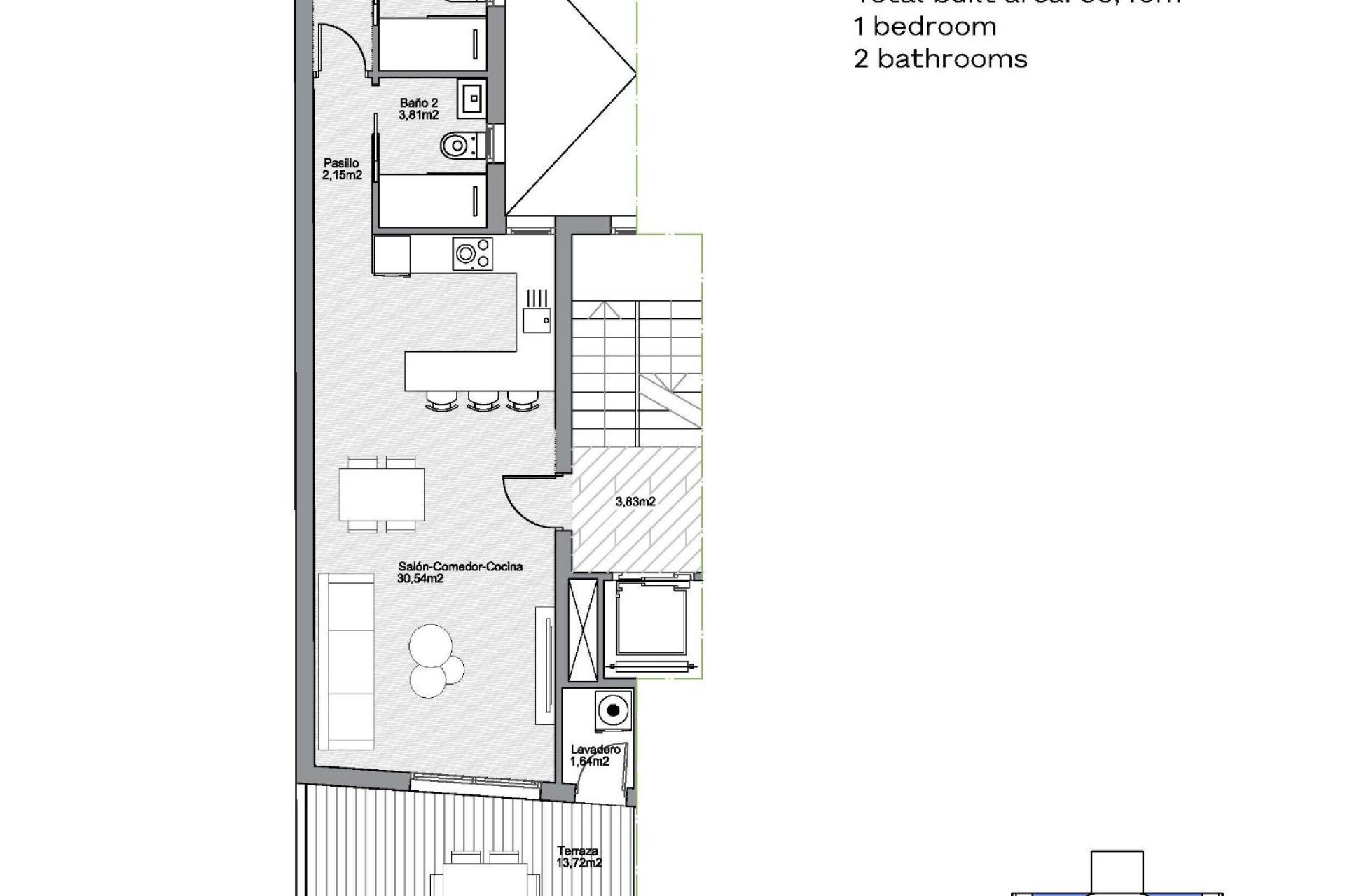
Do wyboru są apartamenty z 1 lub 2 sypialniami, każdy z 2 łazienkami (jedna przy sypialni). Otwarte rozkłady pomieszczeń zostały zaprojektowane tak, aby maksymalnie wykorzystać przestrzeń i naturalne światło, zapewniając zarówno komfort, jak i funkcjonalność. Wysokiej jakości wykończenia, takie jak drzwi wejściowe z zabezpieczeniem, szafy wnękowe z wykończeniem tekstylnym, stolarka aluminiowa z przegrodą termiczną oraz rolety z napędem elektrycznym w salonie gwarantują trwałość i styl. Kuchnie i łazienki wyposażone są w wysokiej jakości armaturę, w tym kabiny prysznicowe i wbudowane lustra. Wstępnie zainstalowana klimatyzacja kanałowa zapewnia komfort przez cały rok.
Ekskluzywne udogodnienia dla mieszkańców
Ten nowoczesny budynek został zaprojektowany z myślą o wygodzie i relaksie. Mieszkańcy mogą korzystać z:
Solarium na dachu z basenem wspólnotowym
Parking dla rowerów i hulajnóg elektrycznych na parterze
Winda z dostępem do wszystkich poziomów, w tym do dachu
Dynamiczny styl życia na Costa Blanca
Torrevieja to tętniące życiem nadmorskie miasto znane z słonecznego klimatu z ponad 300 słonecznymi dniami w roku, wydarzeń kulturalnych i śródziemnomorskiego stylu życia. Plaże, marina, promenady i obiekty do uprawiania sportów wodnych sprawiają, że jest to idealne miejsce do zamieszkania na stałe lub spędzenia wakacji. Wszystkie niezbędne usługi, takie jak supermarkety, kawiarnie, szkoły i placówki służby zdrowia, znajdują się w odległości spaceru.
Doskonała lokalizacja i połączenia komunikacyjne
Ta uprzywilejowana lokalizacja zapewnia szybki dostęp do kluczowych miejsc:
Promenada: 600 m
Playa del Acequión: 1 km
Przystań Torrevieja: 600 m
Centrum handlowe Zenia Boulevard: 8 km
Pola golfowe: 7–10 km
Międzynarodowe lotnisko w Alicante: 45 km
Twój śródziemnomorski dom czeka
Niezależnie od tego, czy szukasz domu wakacyjnego, mądrej inwestycji, czy stałego miejsca zamieszkania, te nowoczesne, nowo wybudowane apartamenty w Torrevieja stanowią doskonałą okazję w jednej z najbardziej pożądanych lokalizacji na Costa Blanca.
Skontaktuj się z nami już dziś, aby umówić się na oglądanie i zapewnić sobie nowy dom w tej ekskluzywnej inwestycji w centrum miasta.