RYNEK PIERWOTNY WILLE W FINESTRAT
Rynek Pierwotny nowoczesne wille w Finestrat.
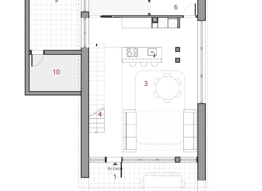
Wille z 3 sypialniami i 3 łazienkami, kuchnią na otwartym planie z częścią wypoczynkową, tarasem ze wspaniałym widokiem na Benidorm, prywatnym ogrodem z basenem i miejscem parkingowym.
Willa została zaprojektowana jako przestrzeń, po której można chodzić, z wewnętrznymi i zewnętrznymi ścieżkami, które zapewniają niezależny dostęp do każdego piętra. Projekt ten oferuje różne perspektywy kompleksu architektonicznego i jego otoczenia, z morzem i Sierra Cortina służącymi jako malownicze tło.
Główne wejście do willi znajduje się w dolnej części działki, z obszernym parkingiem na dwa pojazdy. Element wodny z leżakami wprowadza na parter, charakteryzujący się szerokimi ścianami ozdobionymi murami. Z salonu płynnie rozciąga się taras, możliwy dzięki dużemu składanemu oknu. Drewniane okiennice na murowanych ścianach zapewniają częściowo zadaszoną przestrzeń zewnętrzną dla dodatkowego komfortu.
Basen z akwamarynowymi odcieniami i gresową okładziną sąsiaduje z chodnikiem wykonanym z antypoślizgowych płytek porcelanowych o wyglądzie przypominającym drewno.
Przestrzeń ta obejmuje również miejsce do grillowania, które można dostosować do potrzeb użytkownika, z dostępem z utwardzonej strefy przez naturalny teren.
Finestrat znajduje się w regionie Marina Baixa na Costa Blanca, w pobliżu sąsiedniego Benidorm i około 40 kilometrów od miasta Alicante i międzynarodowego lotniska.
Wioska położona jest na zboczu góry Puig Campana i oferuje piękne widoki na góry, wybrzeże i Morze Śródziemne.
Benidorm znajduje się zaledwie pięć minut jazdy od nieruchomości i oferuje wszystkie potrzebne usługi, w tym sklepy, bary, restauracje, supermarkety, banki, apteki i kilka prywatnych szkół międzynarodowych.