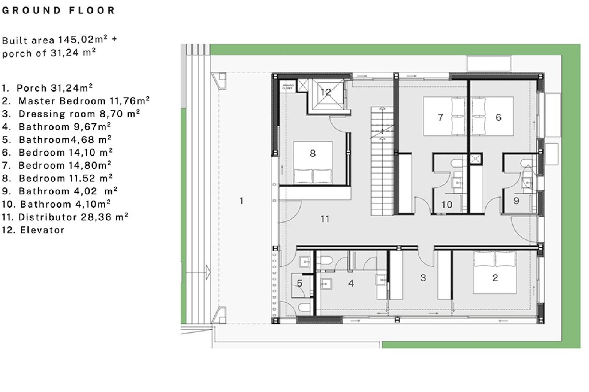
Villa moderna con dos piscinas y azotea panorámica en una prestigiosa zona de Bendinat Situada en una de las zonas costeras más exclusivas de Mallorca, esta elegante villa moderna combina un refinado diseño arquitectónico, altos estándares de confort e impresionantes vistas al mar. La propiedad cuenta con cuatro amplios dormitorios, cada uno con su propio cuarto de baño y acceso a una zona de jardín privado, así como una habitación adicional en el nivel inferior que se puede convertir en un gimnasio, suite de invitados, o refugio privado. También hay un aseo de invitados en la planta principal. El nivel de vida principal está diseñado para maximizar la luz solar y la conexión directa con la naturaleza. Los luminosos pasillos, las ventanas panorámicas y el acceso directo al jardín proporcionan una transición perfecta entre el interior y el exterior. La planta superior alberga un espacioso salón-comedor con cocina abierta, perfecto para las comidas familiares y el entretenimiento. Desde esta planta, una gran terraza con vistas al mar conduce a la azotea. La azotea ofrece una piscina privada con una sala de estar y zona de entretenimiento, desde donde se despliegan impresionantes vistas panorámicas del Mediterráneo y sus alrededores. La propiedad también incluye un hermoso jardín con una cocina al aire libre, una plaza de aparcamiento cubierto para tres coches, y una zona de aparcamiento al aire libre con una puerta automática. El sótano incluye lavadero y trastero. Ubicación: Bendinat, Suroeste de Mallorca. Bendinat es una de las zonas residenciales más prestigiosas de la isla, situada a sólo 10 minutos de Palma. Conocida por su ambiente exclusivo, su proximidad al Real Golf y al puerto deportivo de Puerto Portals, y sus impresionantes vistas a la Bahía de Palma, la zona cuenta con villas de lujo y modernos complejos residenciales. A poca distancia se encuentran colegios internacionales, infraestructuras de primer nivel y las mejores playas de la costa suroeste.