Obra nueva » Apartamento » Villajoyosa &raq

Apartamento. Obra nueva Villajoyosa. Alicante
Ref: NCS-31629

686.000€

Apartamento. Obra nueva Villajoyosa. Alicante
Ref: NCS-31629

Resumen

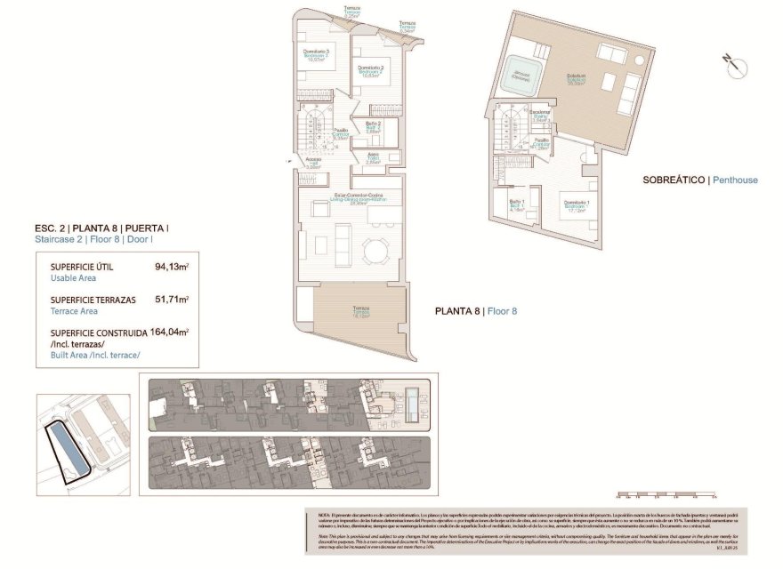
  • METROS 112m2
  • Habitaciones 3
  • Piscina Comunidad
Habitaciones: 3
Baños: 2
Construidos: 112m2
Útiles: 94m2
Piscina: Comunidad
Distancia a la playa: 60 Mts.
Cocina amueblada
Gimnasio
Jacuzzi
Primera línea del mar
Terraza: 51 Msq.
Aparcamiento - Espacio
Playa: 60 metros
Storage / Trastero
Complejo cerrado
Número de plazas de aparcamiento: 1
Vistas: Mar
Cerca de colegios
Cerca del centro comercial
Dormitorios dobles: 3
Espacio edificable útil: 94 Msq.
Ascensor
Piscina comunitaria
Solarium: Sí
Situación: Costa, Urbanización

Descripción

Apartamentos y áticos exclusivos frente al mar en Villajoyosa con vistas panorámicas al Mediterráneo

Localización

Realizar una consulta btn-enquiry

Responsable del tratamiento: Grupo Terrasun, SL, Finalidad del tratamiento: Gestión y control de los servicios ofrecidos a través de la página Web de Servicios inmobiliarios, Envío de información a traves de newsletter y otros, Legitimación: Por consentimiento, Destinatarios: No se cederan los datos, salvo para elaborar contabilidad, Derechos de las personas interesadas: Acceder, rectificar y suprimir los datos, solicitar la portabilidad de los mismos, oponerse altratamiento y solicitar la limitación de éste, Procedencia de los datos: El Propio interesado, Información Adicional: Puede consultarse la información adicional y detallada sobre protección de datos Aquí.

WhatsApp ¡Chatea con nosotros ahora!